Vente
Maison
à
Trappes
369 000 €
Trappes (78190)
iad France - Issam TALBI vous propose: Située dans un quartier pavillonnaire calme et recherché ( La Boissière), cette maison familiale offre de beaux volumes et une organisation fonctionnelle, idéale pour une vie de famille.
D’une surface de 200 m² au sol dont 130 m² habitables, la maison est édifiée sur un sous-sol total et se compose comme suit :
Au rez-de-chaussée :
Entrée avec placard, séjour double avec cheminée donnant accès à une grande terrasse, cuisine séparée, équipé et aménagée avec possibilité d’ouverture sur le séjour, deux chambres, une salle de bain et un WC indépendant.
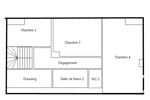
À l’étage :
Trois chambres avec rangement , une salle de bain, un WC séparé et un espace dressing.
Au sous-sol total :
Cuisine d’été, espace de vie, salle de sport, espace hammam avec vestiaire et grand garage.
Extérieurs :
Jardin clos, joliment arboré et sans vis-à-vis.
Ne manquez pas cette opportunité unique d'acquérir une maison familiale confortable et bien entretenue à Trappes. Planifiez dès maintenant une visite pour découvrir cette charmante maison
VISTE VIRTUELLE DISPONIBLE !
Honoraires d'agence à la charge du vendeur.
Information d'affichage énergétique sur ce bien : classe ENERGIE E indice 239 et classe CLIMAT E indice 53. Les informations sur les risques auxquels ce bien est exposé, y compris l'obligation légale de débroussaillement, sont disponibles sur le site Géorisques : http://www.georisques.gouv.fr.
La présente annonce immobilière a été rédigée sous la responsabilité éditoriale de M Issam TALBI mandataire indépendant en immobilier (sans détention de fonds), agent commercial de la SAS I@D France immatriculé au RSAC de VERSAILLES sous le numéro 853796605, titulaire de la carte de démarchage immobilier pour le compte de la société I@D France SAS.
Mandat : 1925573
Diagnostic de Performance Énergétique (DPE)
Plus d'informations
-
Descriptif
- Cave
- Terrasse
- Nbre. d'étages : 3
- Nbre. de chambres : 5
- Nb. Parking : 1
- Nb. de pièces : 7
-
Equipement
- Câble TV
- Cheminée
- Placards
- Chauffage : gaz radiateur
-
Superficies
- Superficie terrain : 380 m²
- Surface habitable : 201 m²
-
Etat
- Année de construction : 1976
-
Conditions
- Honoraires à charge de : vendeur
Localisation
Contactez nous
Pour plus d'informations sur cette annonce, n'hésitez pas à nous contacter