Annonce détaillée

Vente
Maison à Écully
1 090 000 

Détails du bien

Pièce(s)
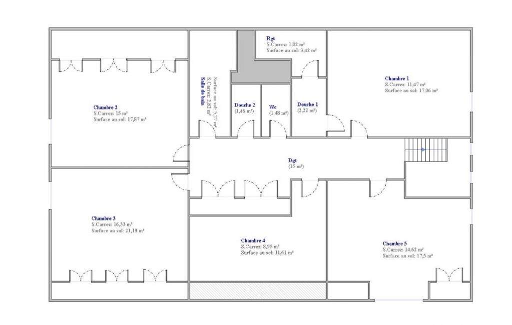
8 pièces
Salle(s) de bain
6
Surface
236 m²
Surface terrain
1999 m²
Orientation
-

Plus d'informations

  • Equipement
    • Alarme
    • Câble TV
    • Placards
    • Chauffage : electrique
  • Descriptif
    • Terrasse
    • Nbre. d'étages : 3
    • Nbre. de chambres : 6
    • Nb. de pièces : 8
  • Superficies
    • Superficie terrain : 1999 m²
    • Surface habitable : 236 m²
  • Extérieur
    • Piscine
  • Conditions
    • Honoraires à charge de : vendeur

Localisation

Contactez nous

Pour plus d'informations sur cette annonce, n'hésitez pas à nous contacter

Pascal Crosnier

Annonce 6779 / 80533