Vente
Appartement
à
Vaujany
615 528 €
Vaujany (38114)
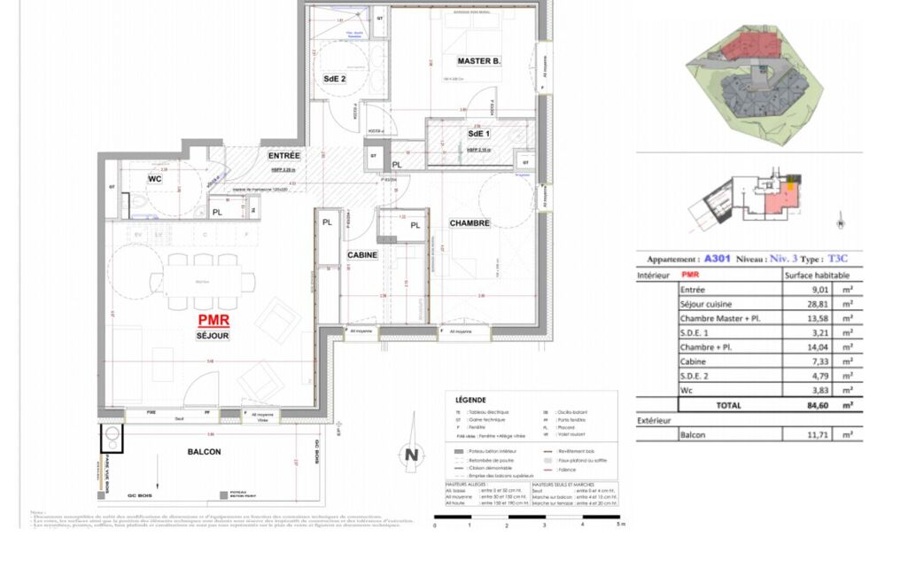
iad France - Hugo Djaou (06 52 79 86 47) vous propose : Situé au cOEur du charmant village de Vaujany, au sein de la résidence AGATE, cet appartement T3 s’inscrit dans un ensemble immobilier de standing offrant confort et prestations haut de gamme.
L’appartement se compose d’un spacieux séjour de 28 m² environ avec cuisine américaine, formant un espace de vie convivial et lumineux, ouvrant sur un balcon de 11 m² environ exposé plein sud, idéal pour profiter de l’ensoleillement et de la vue.
La partie nuit comprend une chambre avec salle d’eau privative, une seconde chambre, ainsi qu’une cabine, offrant une belle capacité d’accueil. Une seconde salle d’eau et des WC séparés complètent l’agencement.
La résidence propose des prestations de standing, avec notamment des espaces communs soignés, locaux à skis et un espace bien-être, pensés pour un confort optimal en toutes saisons.
Un accès piéton sécurisé permet de rejoindre rapidement le centre du village, les commerces ainsi que les remontées mécaniques, faisant de ce bien une opportunité idéale aussi bien en résidence principale, secondaire qu’en investissement locatif.
Honoraires d’agence à la charge du vendeur. Bien non soumis au DPE. Les informations sur les risques auxquels ce bien est exposé sont disponibles sur le site Géorisques : www.georisques.gouv.fr. La présente annonce immobilière a été rédigée sous la responsabilité éditoriale de M. Hugo Djaou EI (ID 91340), mandataire indépendant en immobilier (sans détention de fonds), agent commercial de la SAS I@D France immatriculé au RSAC de GRENOBLE sous le numéro 992957878, titulaire de la carte de démarchage immobilier pour le compte de la société I@D France SAS.
Retrouvez tous nos biens sur notre site internet. www.iadfrance.fr
Mandat : 1926161-10
Diagnostic de Performance Énergétique (DPE)
Plus d'informations
-
Descriptif
- Étage du bien : 3eme
- Ascenseur
- Nb. de pièces : 3
-
Equipement
- Digicode
- Chauffage : collectif gaz
- Interphone
-
Etat
- Année de construction : 2025
-
Conditions
- Honoraires à charge de : vendeur
-
Superficies
- Surface habitable : 85 m²
Localisation
Contactez nous
Pour plus d'informations sur cette annonce, n'hésitez pas à nous contacter