Vente
Maison de ville
à
Saint-Léonard-de-Noblat
230 000 €
Saint-Léonard-de-Noblat (87400)
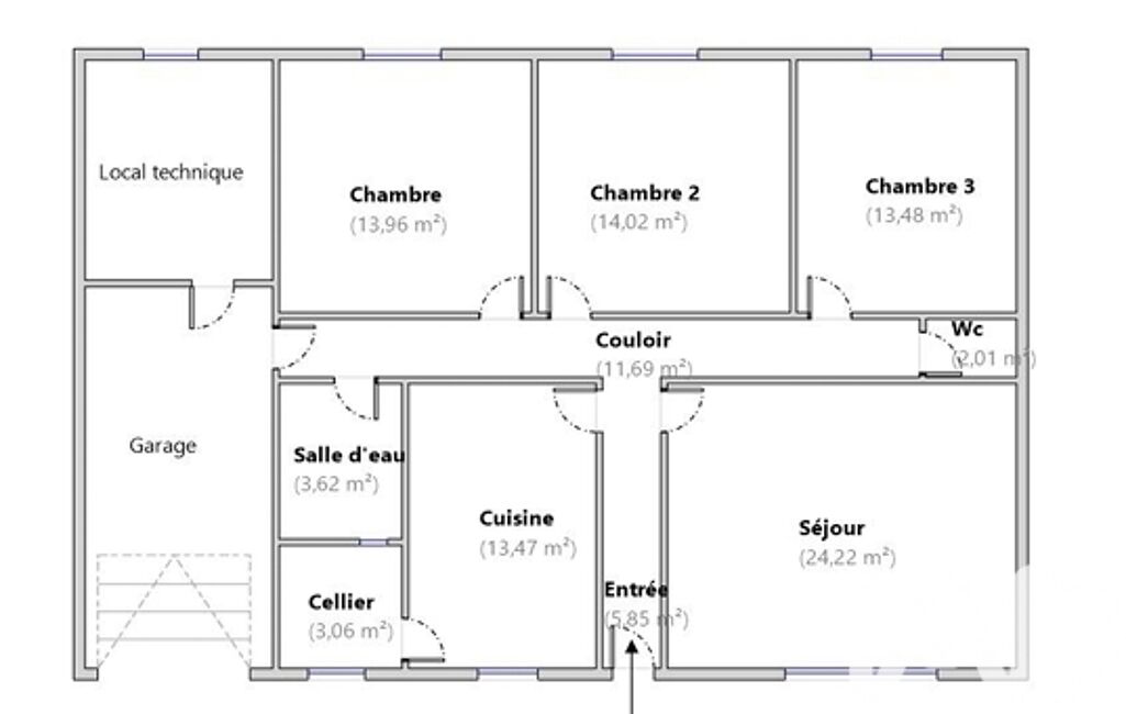
iad France - Aurélie Montazaud vous propose: A deux pas du centre ville, ensemble immobilier de deux maisons similaires et mitoyennes de 105m² de plain pied comprenant : entrée, séjour, cuisine équipée, cellier, salle d'eau, 3 chambres, garage attenant 18m² et chaufferie 9m².
Terrain non attenant de 622m².
Chauffage pompe à chaleur très ressent.
Fenêtres en sur vitrage.
Assainissement tout à l'égout.
En sous sol se trouvent 9 garages actuellement loués (revenus locatif : 480 € par mois)
Possibilité de faire communiquer les deux maisons pour n'en faire qu'une seule.
Honoraires d'agence à la charge du vendeur.
Information d'affichage énergétique sur ce bien : classe ENERGIE C indice 144 et classe CLIMAT A indice 5. Les informations sur les risques auxquels ce bien est exposé, y compris l'obligation légale de débroussaillement, sont disponibles sur le site Géorisques : http://www.georisques.gouv.fr.
La présente annonce immobilière a été rédigée sous la responsabilité éditoriale de Mme Aurélie Montazaud mandataire indépendant en immobilier (sans détention de fonds), agent commercial de la SAS I@D France immatriculé au RSAC de Limoges sous le numéro 943068924, titulaire de la carte de démarchage immobilier pour le compte de la société I@D France SAS.
Mandat : 1971551
Diagnostic de Performance Énergétique (DPE)
Plus d'informations
-
Descriptif
- Nbre. d'étages : 1
- Nbre. de chambres : 6
- Nb. de pièces : 10
-
Superficies
- Superficie terrain : 622 m²
- Surface habitable : 210 m²
-
Conditions
- Honoraires à charge de : vendeur
Localisation
Contactez nous
Pour plus d'informations sur cette annonce, n'hésitez pas à nous contacter