Vente
Maison
à
Noisy-sur-École
610 000 €
Noisy-sur-École (77123)
iad France - Solange Fornarelli vous propose: Maison familiale avec piscine sur grand terrain arboré – Volumes généreux et cadre privilégié
Située dans un secteur calme et recherché de Noisy-sur-École, cette maison familiale offre un cadre de vie agréable, alliant espace, confort et environnement verdoyant.
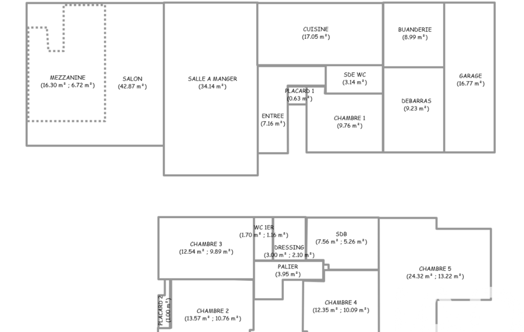
Développant environ 210 m² habitables (178 m² loi Carrez), elle se compose de 7 pièces dont 5 chambres, réparties sur deux niveaux.
Au rez-de-chaussée, la pièce de vie, regroupant salon et salle à manger, bénéficie d’une belle ouverture sur la terrasse et d’une mezzanine, idéale pour aménager un espace bureau ou détente. Une chambre ainsi qu’une salle de bain avec WC permettent une vie de plain-pied. La cuisine récente, entièrement aménagée et équipée, complète cet espace convivial.
À l’étage, l’espace nuit propose quatre chambres, une salle d’eau avec WC ainsi qu’un dressing, offrant une organisation fonctionnelle pour toute la famille.
Un espace complémentaire, accessible depuis l’arrière de la cuisine, comprend une buanderie, une pièce pouvant être aménagée en bureau, ainsi qu’un garage avec cave et mezzanine, apportant des surfaces de rangement supplémentaires.
À l’extérieur, le terrain arboré de 3 312 m² constitue un véritable atout. Il accueille une piscine couverte de 9 x 4,5 m et un espace jardin à aménager selon les envies, permettant de profiter pleinement d’un environnement naturel et paisible.
Un bien aux volumes confortables, adapté à une vie de famille dans un cadre privilégié
La presente annonce immobiliere vise 1 lot situé dans une copropriété de 114 lots au total et ne faisant l'objet d'aucune procédure en cours citée à l'article L. 721-1 du code de la construction et de l'habitation. Montant moyen mensuel de charges déclaré par le vendeur : 90€ par mois (soit 1080 € annuel). Honoraires d'agence à la charge du vendeur.
Information d'affichage énergétique sur ce bien : classe ENERGIE C indice 129 et classe CLIMAT A indice 5. Les informations sur les risques auxquels ce bien est exposé, y compris l'obligation légale de débroussaillement, sont disponibles sur le site Géorisques : http://www.georisques.gouv.fr.
La présente annonce immobilière a été rédigée sous la responsabilité éditoriale de Mme Solange Fornarelli mandataire indépendant en immobilier (sans détention de fonds), agent commercial de la SAS I@D France immatriculé au RSAC de Evry sous le numéro 918678004, titulaire de la carte de démarchage immobilier pour le compte de la société I@D France SAS.
Mandat : 1941308
Diagnostic de Performance Énergétique (DPE)
Plus d'informations
-
Descriptif
- Cave
- Terrasse
- Nbre. d'étages : 2
- Nbre. de chambres : 5
- Nb. de pièces : 7
-
Loi ALUR
- Copropriété
- Nombre de lots de la copropriété : 114
- Moyenne de la quote part(an) : 1 080 €
-
Equipement
- Cheminée
- Chauffage : electrique radiateur
-
Superficies
- Superficie terrain : 3312 m²
- Surface habitable : 210 m²
-
Extérieur
- Piscine
-
Etat
- Année de construction : 1990
-
Conditions
- Honoraires à charge de : vendeur
Localisation
Contactez nous
Pour plus d'informations sur cette annonce, n'hésitez pas à nous contacter