Vente
Terrain
à
Cérons
107 500 €
Cérons (33720)
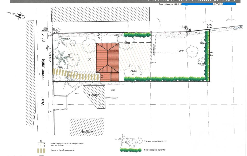
iad France - Camille Bédouret vous propose: Dans un quartier calme de Cérons, je vous propose de venir découvrir ce terrain à bâtir plat d'une superficie de 900m² dont une petite partie est en zone A (agricole), en fond de parcelle.
La surface de plancher totale allouée à l'opération est de 250m².
Les règles d'urbanisme applicables sont celles du PLU - zone UA.
Il sera à viabiliser et l'assainissement sera de type individuel.
Projet soumis aux ABF.
Honoraires d'agence à la charge du vendeur.
Bien non soumis au DPE. Les informations sur les risques auxquels ce bien est exposé, y compris l'obligation légale de débroussaillement, sont disponibles sur le site Géorisques : http://www.georisques.gouv.fr.
La présente annonce immobilière a été rédigée sous la responsabilité éditoriale de Mme Camille Bédouret mandataire indépendant en immobilier (sans détention de fonds), agent commercial de la SAS I@D France immatriculé au RSAC de BORDEAUX sous le numéro 528 548 605, titulaire de la carte de démarchage immobilier pour le compte de la société I@D France SAS.
Mandat : 1973416
Diagnostic de Performance Énergétique (DPE)
Plus d'informations
-
Conditions
- Honoraires à charge de : vendeur
-
Superficies
- Superficie terrain : 900 m²
Localisation
Contactez nous
Pour plus d'informations sur cette annonce, n'hésitez pas à nous contacter