Vente
Appartement
à
Parempuyre
137 000 €
Parempuyre (33290)
iad France - Sylvain Dejoux vous propose: PAREMPUYRE – Résidence La Roseraie – T2 vendu loué avec balcon, parking et piscine
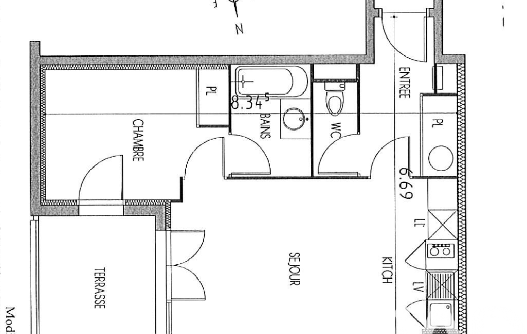
Situé au sein de la résidence La Roseraie à Parempuyre, cet appartement T2 de 40 m², vendu loué, représente une belle opportunité pour un investissement locatif clé en main.
Au 2e et dernier étage d’une copropriété agréable, il offre un cadre de vie lumineux et fonctionnel, avec une pièce de vie ouverte sur un balcon bien exposé, particulièrement apprécié des occupants. Son emplacement en étage élevé constitue également un vrai plus en termes de tranquillité.
Une place de stationnement extérieure privative complète le bien. Autre atout recherché : la résidence dispose d’une piscine privée réservée aux résidents, renforçant l’attractivité locative de l’appartement.
Déjà loué, ce bien permet de bénéficier d’un revenu immédiat, avec un loyer de 522 € hors charges, auxquels s’ajoutent 37 € de provisions sur charges.
Prix de vente : 137 000 €
Rentabilité brute : 4,6 %
Côté emplacement, l’appartement profite d’un environnement pratique et bien desservi :
ligne de bus 22 dans la rue, vers la gare de Blanquefort et le tram C
commerces à 1,5 km
école à 12 minutes à pied
rocade à 8 km
Un bien idéal pour un investisseur souhaitant acquérir un appartement déjà loué, au sein d’une résidence recherchée, avec des prestations appréciées telles que balcon, stationnement et piscine.
La presente annonce immobiliere vise 2 lots situés dans une copropriété de 310 lots au total et ne faisant l'objet d'aucune procédure en cours citée à l'article L. 721-1 du code de la construction et de l'habitation. Montant moyen mensuel de charges déclaré par le vendeur : 58.33€ par mois (soit 700 € annuel). Honoraires d'agence à la charge du vendeur.
Information d'affichage énergétique sur ce bien : classe ENERGIE C indice 170 et classe CLIMAT B indice 6. Les informations sur les risques auxquels ce bien est exposé, y compris l'obligation légale de débroussaillement, sont disponibles sur le site Géorisques : http://www.georisques.gouv.fr.
La présente annonce immobilière a été rédigée sous la responsabilité éditoriale de M Sylvain Dejoux mandataire indépendant en immobilier (sans détention de fonds), agent commercial de la SAS I@D France immatriculé au RSAC de Bordeaux sous le numéro 845108687, titulaire de la carte de démarchage immobilier pour le compte de la société I@D France SAS.
Mandat : 1974440
Diagnostic de Performance Énergétique (DPE)
Plus d'informations
-
Equipement
- Digicode
- Chauffage : individuel electrique radiateur
- Interphone
-
Descriptif
- Nbre. d'étages : 2
- Nbre. de chambres : 1
- Nb. de pièces : 2
-
Loi ALUR
- Copropriété
- Nombre de lots de la copropriété : 310
- Moyenne de la quote part(an) : 700 €
-
Etat
- Année de construction : 2009
-
Conditions
- Honoraires à charge de : vendeur
-
Superficies
- Surface habitable : 40 m²
Localisation
Contactez nous
Pour plus d'informations sur cette annonce, n'hésitez pas à nous contacter