Vente
Appartement
à
Aubervilliers
136 000 €
Aubervilliers (93300)
iad France - Pingping Liu vous propose: Aubervilliers – Beau studio lumineux, sans travaux, au 11e étage avec ascenseur, avec cave – Idéal investissement ou primo-accédant
Studio bien agencé et lumineux, situé dans une résidence sécurisée, avec rentabilité attractive.
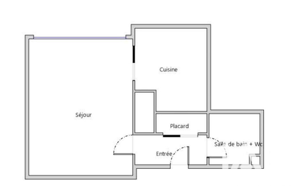
Situé rue Henri Barbusse, au 11e étage sur 18 avec ascenseur, agréable studio de 25,81 m².
Il se compose d’une pièce principale avec espace nuit, d’une cuisine indépendante, d’une entrée et d’une salle d’eau avec WC. Une cave complète ce bien.
Très bon état général, aucun travaux à prévoir.
DPE : D
Charges : 132 € / mois
Taxe foncière : 978 € / an
Dernier loyer : 770 € / mois (bonne rentabilité)
Prix : 136 000 €
La presente annonce immobiliere vise 2 lots situés dans une copropriété de 1936 lots au total et ne faisant l'objet d'aucune procédure en cours citée à l'article L. 721-1 du code de la construction et de l'habitation. Montant moyen mensuel de charges déclaré par le vendeur : 132€ par mois (soit 1584 € annuel). Honoraires d'agence à la charge du vendeur.
Information d'affichage énergétique sur ce bien : classe ENERGIE D indice 255 et classe CLIMAT C indice 28. Les informations sur les risques auxquels ce bien est exposé, y compris l'obligation légale de débroussaillement, sont disponibles sur le site Géorisques : http://www.georisques.gouv.fr.
La présente annonce immobilière a été rédigée sous la responsabilité éditoriale de Mme Pingping Liu mandataire indépendant en immobilier (sans détention de fonds), agent commercial de la SAS I@D France immatriculé au RSAC de CRETEIL sous le numéro 952648004, titulaire de la carte de démarchage immobilier pour le compte de la société I@D France SAS.
Mandat : 1977377
Diagnostic de Performance Énergétique (DPE)
Plus d'informations
-
Descriptif
- Cave
- Gardien
- Ascenseur
- Nbre. d'étages : 18
- Nbre. de chambres : 1
- Nb. de pièces : 2
-
Equipement
- Câble TV
- Digicode
- Chauffage : collectif electrique radiateur
- Interphone
-
Loi ALUR
- Copropriété
- Nombre de lots de la copropriété : 1936
- Moyenne de la quote part(an) : 1 584 €
-
Conditions
- Honoraires à charge de : vendeur
-
Superficies
- Surface habitable : 25 m²
Localisation
Contactez nous
Pour plus d'informations sur cette annonce, n'hésitez pas à nous contacter