Vente
Appartement
à
Grimaud
598 000 €
Grimaud (83310)
iad France - Sarah Rozière (06 99 86 19 42) vous propose : Fééries Provençales – Appartement au cOEur de Grimaud
Au cOEur du village médiéval de Grimaud, face au Golfe de Saint-Tropez, la résidence Fééries Provençales incarne l’art de vivre provençal dans son expression la plus élégante.
Son architecture de caractère s’inspire des traditions locales : tuiles canal, menuiseries bois, ferronneries délicates. Entourée d’un parc paysager méditerranéen ponctué de lavandes, oliviers et micocouliers, elle accueille également une piscine privée avec solarium, offrant un véritable havre de quiétude
Un appartement raffiné et lumineux:
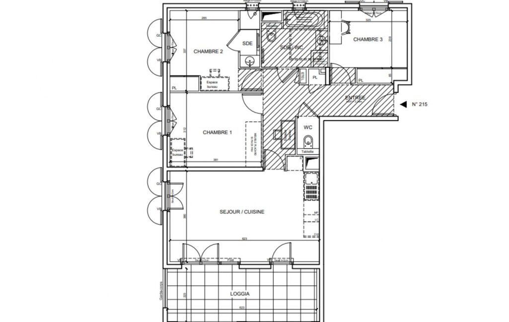
Au 1er étage, cet élégant 4 pièces de 77 m² environ combine confort et modernité :
- Une entrée fonctionnelle avec rangements.
- Une pièce de vie de 24 m² environ avec cuisine ouverte, baignée de lumière.
- Trois chambres, dont une suite parentale avec salle d’eau privative.
- Une salle de bains supplémentaire et WC indépendants.
L’espace se prolonge vers l’extérieur avec une loggia de 14 m² environ orientée sud-est, un véritable salon à ciel ouvert pour profiter du climat méditerranéen
Des belles prestations :
- Climatisation réversible individuelle.
- Menuiseries bois et baies vitrées double vitrage.
- Résidence sécurisée avec vidéophone, halls décorés et parkings en sous-sol.
- Piscine privée avec solarium au cOEur du parc paysager.
Grimaud, l’authenticité provençale face à Saint-Tropez :
- Village médiéval préservé à 200 m, avec ses ruelles pavées et son château.
- Port-Grimaud, la « petite Venise provençale », à 10 minutes.
- Plages du Golfe de Saint-Tropez à 6 km.
- Saint-Tropez et ses adresses mythiques à 12 km.
- Aéroport du Golfe de Saint-Tropez à 15 minutes
Un appartement qui allie l’élégance, le charme intemporel de la Provence et un emplacement d’exception, dans l’un des villages les plus recherchés de la Côte d’Azur.
N’hésitez pas à me contacter pour plus d’informations ou pour un accompagnement sur mesure.
Honoraires d’agence à la charge du vendeur. Bien non soumis au DPE. Les informations sur les risques auxquels ce bien est exposé sont disponibles sur le site Géorisques : www.georisques.gouv.fr. La présente annonce immobilière a été rédigée sous la responsabilité éditoriale de Mlle Sarah Rozière EI (ID 83696), mandataire indépendant en immobilier (sans détention de fonds), agent commercial de la SAS I@D France immatriculé au RSAC de Clermont-Ferrand sous le numéro 978616993, titulaire de la carte de démarchage immobilier pour le compte de la société I@D France SAS.
Retrouvez tous nos biens sur notre site internet. www.iadfrance.fr
Mandat : 1721292-2
Diagnostic de Performance Énergétique (DPE)
Plus d'informations
-
Descriptif
- Étage du bien : 1er
- Ascenseur
- Nbre. d'étages : 4
- Nbre. de chambres : 3
- Nb. Parking : 1
- Nb. de pièces : 4
-
Equipement
- Câble TV
- Digicode
- Interphone
- Climatisation
-
Conditions
- Honoraires à charge de : vendeur
-
Superficies
- Surface habitable : 77 m²
Localisation
Contactez nous
Pour plus d'informations sur cette annonce, n'hésitez pas à nous contacter