Vente
Maison
à
Balma
1 050 000 €
Balma (31130)
iad France - Gilles Geenen vous propose: EN EXCLUSIVITÉ ! Magnifique maison familiale de caractère située à Balma, dans un environnement résidentiel calme et recherché. Cette propriété, construite en 1992, offre un cadre de vie privilégié, alliant confort, volumes généreux et tranquillité, idéale pour une famille à la recherche d’espace et de qualité de vie.
Implantée sur une parcelle arborée de 1 883 m², sans aucun vis-à-vis, la maison bénéficie d’un jardin soigné constituant un véritable havre de paix. L’espace extérieur invite pleinement à la détente autour de la piscine, prolongée par une terrasse accessible depuis toutes les pièces du rez-de-chaussée et une cuisine d’été couverte, parfaite pour profiter des beaux jours et des repas en extérieur en toute intimité.
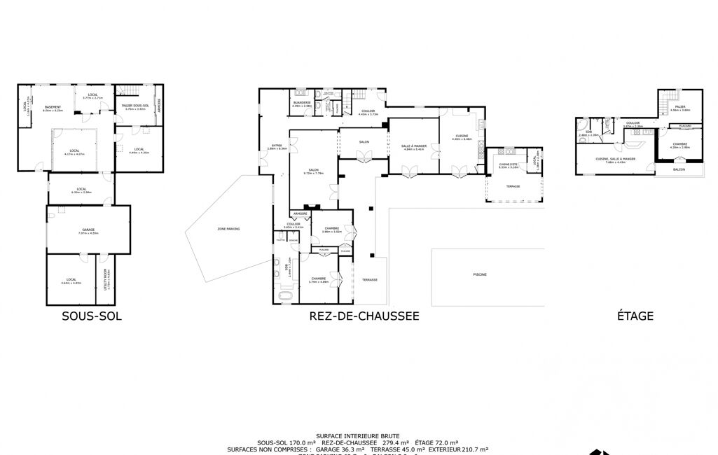
La maison, d'une surface totale de 493 m², se développe sur trois niveaux. Le sous-sol complet (197,5 m²), entièrement aménagé, comprend un ancien cabinet dentaire, un bureau, une pièce dédiée à la musique, une buanderie chaufferie, un grand garage ainsi qu’un local technique pour la piscine, offrant de nombreuses possibilités d’aménagement selon vos projets personnels ou professionnels.
Au rez-de-chaussée, une vaste entrée dessert un double salon lumineux, une salle à manger, une cuisine indépendante, deux grandes chambres avec accès direct à la piscine, une très belle salle de bain, un toilette indépendant ainsi qu’une buanderie. Les volumes et la circulation fluide entre les espaces renforcent le confort de vie au quotidien.
À l’étage, un palier pouvant accueillir un bureau ou un espace atelier mène à une chambre avec balcon, une salle de bain, avec toilette séparé et un séjour avec cuisine ouverte. Cet espace, parfaitement autonome, peut aisément être envisagé comme un studio indépendant, idéal pour un membre de la famille souhaitant plus d’indépendance.
La terrasse, qui entoure la piscine et communique avec l’ensemble des pièces principales du rez-de-chaussée, prolonge harmonieusement les espaces de vie vers l’extérieur. La propriété est entièrement sécurisée par deux portails et équipée d’un interphone, garantissant calme et sérénité. Le chauffage individuel, avec plancher chauffant au rez-de-chaussée, assure un confort thermique optimal en toutes saisons.
Cette maison de caractère nécessite quelques travaux de rafraîchissement afin d’être remise au goût du jour et de révéler pleinement tout son potentiel. Avec ses beaux volumes, son grand garage, sa piscine et son cadre verdoyant, elle constitue une opportunité rare à Balma pour les amateurs d’authenticité et de qualité de vie.
Honoraires d'agence à la charge du vendeur.
Information d'affichage énergétique sur ce bien : classe ENERGIE C indice 146 et classe CLIMAT C indice 23. Les informations sur les risques auxquels ce bien est exposé, y compris l'obligation légale de débroussaillement, sont disponibles sur le site Géorisques : http://www.georisques.gouv.fr.
La présente annonce immobilière a été rédigée sous la responsabilité éditoriale de M Gilles Geenen mandataire indépendant en immobilier (sans détention de fonds), agent commercial de la SAS I@D France immatriculé au RSAC de TOULOUSE sous le numéro 891649824, titulaire de la carte de démarchage immobilier pour le compte de la société I@D France SAS.
Mandat : 1970941
Diagnostic de Performance Énergétique (DPE)
Plus d'informations
-
Descriptif
- Cave
- Terrasse
- Nbre. d'étages : 3
- Nbre. de chambres : 3
- Nb. de pièces : 7
-
Equipement
- Câble TV
- Placards
- Chauffage : gaz radiateur
- Interphone
-
Superficies
- Surface terrasse : 100 m²
- Superficie terrain : 1883 m²
- Surface habitable : 300 m²
-
Extérieur
- Piscine
-
Etat
- Année de construction : 1992
-
Conditions
- Honoraires à charge de : vendeur
Localisation
Contactez nous
Pour plus d'informations sur cette annonce, n'hésitez pas à nous contacter