Vente
Appartement
à
Serris
323 000 €
Serris (77700)
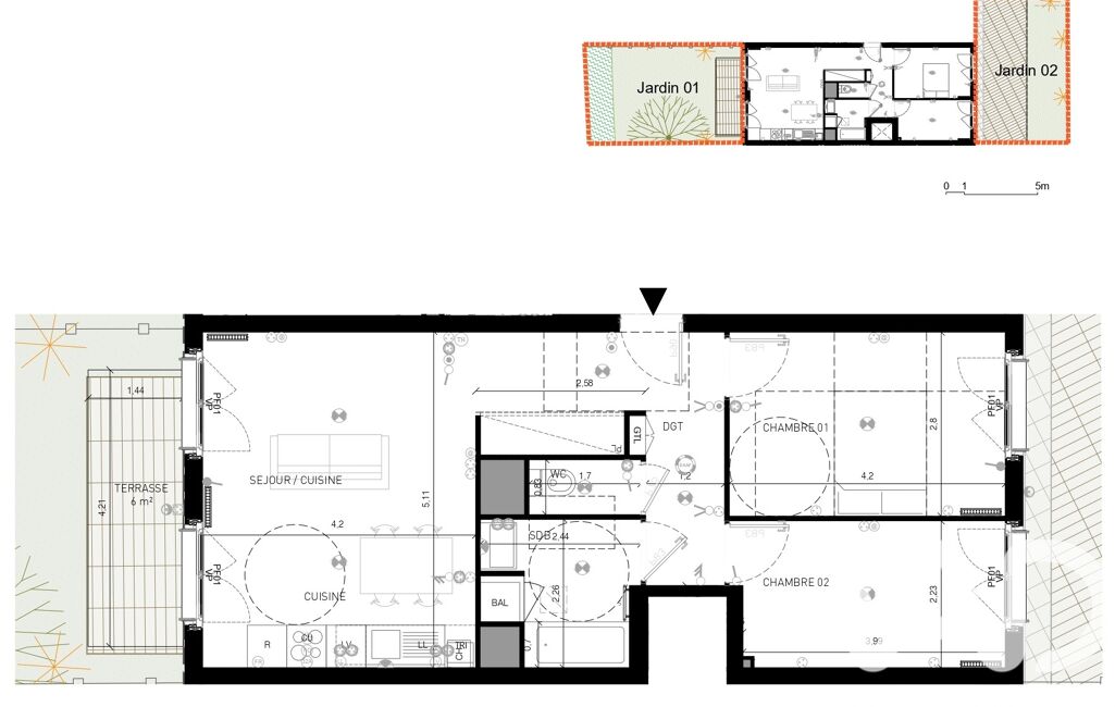
iad France - Sylvie Decamps vous propose: *** SERRIS *** Dans une résidence sécurisée au cadre bucolique, venez découvrir cet appartement de 2025, jamais habité, de type F3 et avec jardins privatifs!
Il se compose:
* d'une entrée avec placard
* d'une pièce de vie avec un coin cuisine à aménager, le tout donnant sur un premier jardin de 46m²
* d'un dégagement qui dessert 2 chambres chacune donnant sur une grande terrasse carrelée et un deuxième jardin privatif de 40m²
* une salle d'eau
* des Wc indépendants.
Une place de parking privative complète le bien.
Appartement traversant exposé Est - Ouest.
Le secteur: Accès aisé à l’autoroute A4 / lignes de bus au pied de la résidence / A exactement 2.5km de la gare du Val d'Europe (RER A)
Accessible aux PMR.
Contactez-moi pour tout complément d'informations ou pour une visite, je suis joignable 7j/7
La presente annonce immobiliere vise 2 lots situés dans une copropriété de 126 lots au total et ne faisant l'objet d'aucune procédure en cours citée à l'article L. 721-1 du code de la construction et de l'habitation. Montant moyen mensuel de charges déclaré par le vendeur : 94€ par mois (soit 1128 € annuel). Honoraires d'agence à la charge du vendeur.
Information d'affichage énergétique sur ce bien : classe ENERGIE B indice 55 et classe CLIMAT B indice 7. Les informations sur les risques auxquels ce bien est exposé, y compris l'obligation légale de débroussaillement, sont disponibles sur le site Géorisques : http://www.georisques.gouv.fr.
La présente annonce immobilière a été rédigée sous la responsabilité éditoriale de Mme Sylvie Decamps mandataire indépendant en immobilier (sans détention de fonds), agent commercial de la SAS I@D France immatriculé au RSAC de MEAUX sous le numéro 853 649 408, titulaire de la carte de démarchage immobilier pour le compte de la société I@D France SAS.
Mandat : 1933899
Diagnostic de Performance Énergétique (DPE)
Plus d'informations
-
Descriptif
- Terrasse
- Nbre. d'étages : 2
- Nbre. de chambres : 2
- Nb. de pièces : 3
-
Loi ALUR
- Copropriété
- Nombre de lots de la copropriété : 126
- Moyenne de la quote part(an) : 1 128 €
-
Equipement
- Digicode
- Chauffage : individuel gaz radiateur
-
Superficies
- Superficie terrain : 86 m²
- Surface habitable : 58 m²
-
Etat
- Année de construction : 2025
-
Conditions
- Honoraires à charge de : vendeur
Localisation
Contactez nous
Pour plus d'informations sur cette annonce, n'hésitez pas à nous contacter