Vente
Maison
à
Les Sables-d'Olonne
464 000 €
Les Sables-d'Olonne (85340)
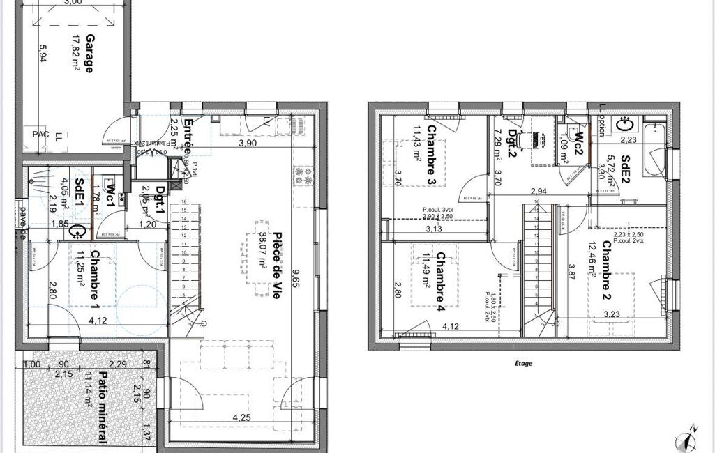
iad France - Caroline Louineau (06 68 18 06 48) vous propose : OLONNE-SUR-MER – MAISON NEUVE – 4 CHAMBRES – PMR – GARAGE – TERRAIN CLOS – PATIO
Maison neuve très lumineuse dans un lotissement de 8 maisons en impasse, à deux pas du golf et du centre-ville.
Séjour avec grande pièce de vie, patio central accessible depuis le salon et la suite parentale au RDC (PMR possible).
3 chambres à l’étage, salle de bain + WC séparés.
Garage, terrain clos, stationnement et accès indépendant sur le terrain.
Contactez-moi pour plus d’infos !
Honoraires d’agence à la charge du vendeur. Bien non soumis au DPE. Les informations sur les risques auxquels ce bien est exposé sont disponibles sur le site Géorisques : www.georisques.gouv.fr. La présente annonce immobilière a été rédigée sous la responsabilité éditoriale de Mme Caroline Louineau EI (ID 69168), mandataire indépendant en immobilier (sans détention de fonds), agent commercial de la SAS I@D France immatriculé au RSAC de La-Roche-sur-Yon sous le numéro 913544326, titulaire de la carte de démarchage immobilier pour le compte de la société I@D France SAS.
Retrouvez tous nos biens sur notre site internet. www.iadfrance.fr
Mandat : 1226737-6
Diagnostic de Performance Énergétique (DPE)
Plus d'informations
-
Superficies
- Superficie terrain : 231 m²
- Surface habitable : 109 m²
-
Conditions
- Honoraires à charge de : vendeur
-
Descriptif
- Nb. de pièces : 5
Localisation
Contactez nous
Pour plus d'informations sur cette annonce, n'hésitez pas à nous contacter