Vente
Maison
à
Sornay
195 000 €
Sornay (70150)
iad France - Alain Barbe vous propose: Maison de village mitoyenne d’environ 162 m² habitables, construite dans les années 1940, offre un cadre de vie paisible dans une rue calme tout en bénéficiant d’un environnement pratique à proximité des commodités. Implantée sur un terrain clos de 926 m², elle séduit dès l’arrivée par sa grande cour en enrobé permettant de stationner facilement plusieurs véhicules et donnant accès à un vaste garage attenant. Celui-ci offre un bel espace pour le stationnement mais également un atelier avec zone de rangement au fond ainsi qu’une cave, apportant de nombreuses possibilités de stockage.
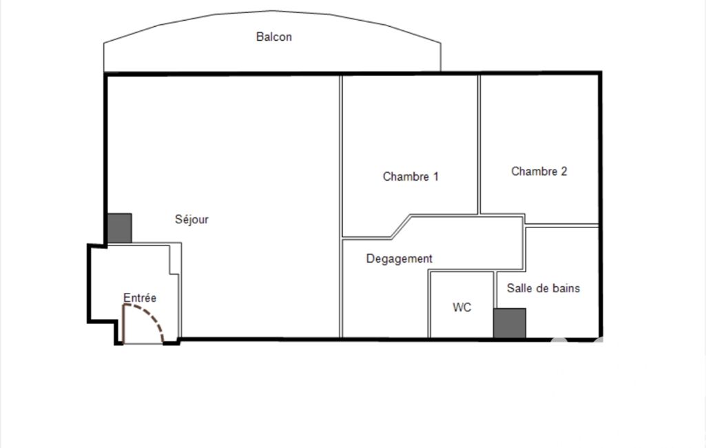
Au rez-de-chaussée, l’entrée distribue une cuisine séparée, une salle de bain avec WC, une chaufferie/buanderie ainsi qu’un vaste salon-séjour lumineux qui constitue un espace de vie agréable et convivial au quotidien. L’étage accueille quatre chambres spacieuses, une salle d’eau et un grenier offrant un volume complémentaire intéressant, également accessible depuis le garage.
La maison bénéficie d’un bon niveau de performance énergétique avec un diagnostic classé C pour la consommation et A pour les émissions. Le chauffage est assuré par une pompe à chaleur installée il y a trois ans, complétée par un insert à bois apportant confort et chaleur durant l’hiver. L’assainissement est raccordé au tout-à-l’égout et conforme. Habitable immédiatement, le bien pourra simplement faire l’objet de quelques travaux de finition pour être mis au goût de ses futurs propriétaires.
Sa situation constitue également un véritable atout, à seulement 5 minutes de Marnay et environ 30 minutes de Besançon, tout en profitant d’un village disposant d’un pôle scolaire, idéal pour une vie de famille dans un environnement calme et pratique.
Honoraires d'agence à la charge du vendeur.
Information d'affichage énergétique sur ce bien : classe ENERGIE C indice 153 et classe CLIMAT A indice 5. Les informations sur les risques auxquels ce bien est exposé, y compris l'obligation légale de débroussaillement, sont disponibles sur le site Géorisques : http://www.georisques.gouv.fr.
La présente annonce immobilière a été rédigée sous la responsabilité éditoriale de M Alain Barbe mandataire indépendant en immobilier (sans détention de fonds), agent commercial de la SAS I@D France immatriculé au RSAC de VESOUL sous le numéro 483479473, titulaire de la carte de démarchage immobilier pour le compte de la société I@D France SAS.
Mandat : 1965763
Diagnostic de Performance Énergétique (DPE)
Plus d'informations
-
Descriptif
- Cave
- Nbre. d'étages : 2
- Nbre. de chambres : 4
- Nb. de pièces : 6
-
Superficies
- Superficie terrain : 926 m²
- Surface habitable : 162 m²
-
Etat
- Année de construction : 1940
-
Conditions
- Honoraires à charge de : vendeur
Localisation
Contactez nous
Pour plus d'informations sur cette annonce, n'hésitez pas à nous contacter