Vente
Maison
à
Manduel
690 000 €
Manduel (30129)
iad France - Caroline Barral vous propose: Élégance et art de vivre au cOEur d’un environnement privilégié !
Au cOEur d’un village recherché, à seulement quelques minutes de Nîmes, découvrez cette somptueuse maison de maître du XVIIIᵉ siècle, développant environ 302 m² habitables, nichée dans un écrin de verdure intime de 700 m² sans aucun vis-à-vis avec piscine.
Dès l’entrée, le charme opère : volumes généreux, hauteurs sous plafond remarquables, escalier central de caractère, matériaux nobles… chaque détail témoigne de l’authenticité et de l’histoire des lieux.
Le rez-de-chaussée propose des espaces de vie chaleureux et lumineux, avec une salle à manger et un salon ouverts sur une agréable terrasse et un jardin paysager aux ambiances méditerranéennes. La cuisine, aménagée et équipée, s’intègre harmonieusement à cet ensemble convivial. Un atelier, une chaufferie ainsi que des toilettes complètent ce niveau.
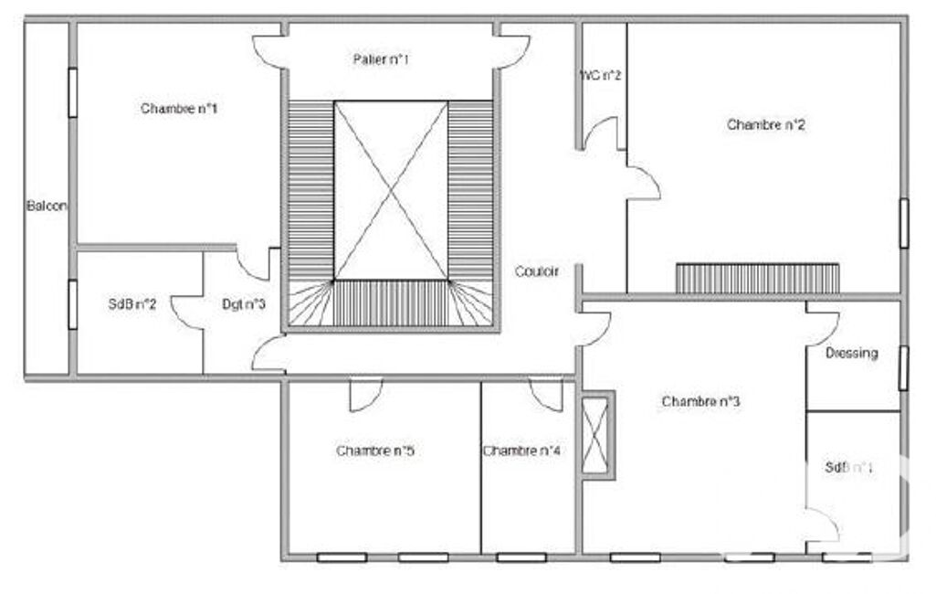
À l’étage, l’espace nuit offre quatre chambres, dont une superbe suite parentale avec salle de bains et dressing. L’une des chambres dispose d’un agencement en duplex, apportant un charme supplémentaire. Une seconde salle de bains, un WC indépendant ainsi qu’un balcon viennent parfaire cet étage.
Le dernier niveau dévoile une vaste terrasse d’environ 40 m², offrant une vue dégagée sur les toits.
Des combles et greniers restent à exploiter, laissant entrevoir de nombreuses possibilités d’aménagement selon vos envies.
Grâce à ses volumes et à sa configuration, cette demeure s’adapte à de nombreux projets : résidence familiale de caractère, maison de vacances, ou encore activité de chambres d’hôtes. Un bien aux multiples potentiels, idéal pour allier qualité de vie et projet professionnel.
À l’extérieur, le jardin, véritable havre de paix, accueille une piscine au sel, des espaces de détente et un garage, pour un confort de vie optimal.
Côté prestations : pompe à chaleur, menuiseries bois double vitrage, fibre optique, cheminée avec insert… un équilibre parfait entre confort moderne et cachet de l’ancien.
Idéalement située, la propriété bénéficie de toutes les commodités à pied, ainsi que de la proximité de l’Aéroport de Nîmes-Alès-Camargue-Cévennes (Nîmes Garons), et d’un accès rapide à la gare TGV de Nîmes (Paris en 3h, Lyon en 1h20), aux axes autoroutiers ainsi qu’aux plages à moins de 45 minutes.
Une demeure rare, alliant caractère, volumes et qualité de vie, à découvrir sans tarder.
Ouvert à l’inter-agence.
Honoraires d'agence à la charge du vendeur.
Information d'affichage énergétique sur ce bien : classe ENERGIE C indice 175 et classe CLIMAT A indice 5. Les informations sur les risques auxquels ce bien est exposé, y compris l'obligation légale de débroussaillement, sont disponibles sur le site Géorisques : http://www.georisques.gouv.fr.
La présente annonce immobilière a été rédigée sous la responsabilité éditoriale de Mme Caroline Barral mandataire indépendant en immobilier (sans détention de fonds), agent commercial de la SAS I@D France immatriculé au RSAC de Nîmes sous le numéro 488240011, titulaire de la carte de démarchage immobilier pour le compte de la société I@D France SAS.
Mandat : 1986469
Diagnostic de Performance Énergétique (DPE)
Plus d'informations
-
Equipement
- Alarme
- Câble TV
- Placards
- Chauffage : electrique radiateur
- Interphone
- Climatisation
-
Descriptif
- Cave
- Terrasse
- Nbre. d'étages : 2
- Nbre. de chambres : 5
- Nb. de pièces : 9
-
Superficies
- Surface terrasse : 40 m²
- Superficie terrain : 700 m²
- Surface habitable : 302 m²
-
Extérieur
- Piscine
-
Etat
- Année de construction : 1800
-
Conditions
- Honoraires à charge de : vendeur
Localisation
Contactez nous
Pour plus d'informations sur cette annonce, n'hésitez pas à nous contacter