Vente
Maison
à
Gonneville-sur-Honfleur
624 000 €
Gonneville-sur-Honfleur (14600)
iad France - Sylvia Waloryszek vous propose: Située dans la jolie campagne Honfleuraise, à Gonneville-sur-Honfleur, cette maison confortable de 175 m2 offrant un espace de vie à la fois généreux et chaleureux.
Vous serez séduit dès l'entrée par un vaste espace de vie comprenant une cuisine à aménager ouverte sur un spacieux séjour, une arrière cuisine, une chambre, une première salle de bain et wc invité.
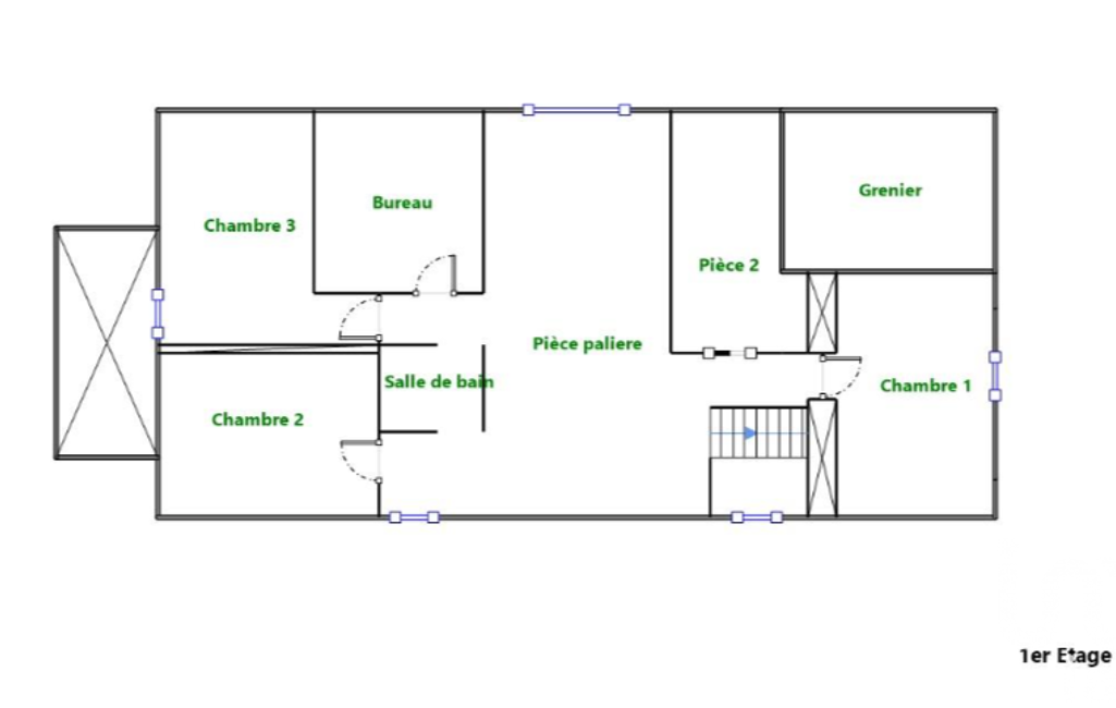
A l'étage, vous trouverez un bel espace à la lumière traversante dédié à la détente, trois chambres spacieuses, une salle de bain enfants, un espace de rangement et une salle de bain à aménager.
Véritable havre de paix, le jardin plat de 2000 m2 arboré est complété par 2 abris de jardin et un parking.
Vous apprécierez l'alliance entre charme et modernité de cette propriété ainsi que les possibilités d'aménagement restantes. Cette propriété séduira les amoureux des belles pierres, des endroits paisible et lumineux.
Honoraires d'agence à la charge du vendeur.
Information d'affichage énergétique sur ce bien : classe ENERGIE C indice 153 et classe CLIMAT B indice 6. Les informations sur les risques auxquels ce bien est exposé, y compris l'obligation légale de débroussaillement, sont disponibles sur le site Géorisques : http://www.georisques.gouv.fr.
La présente annonce immobilière a été rédigée sous la responsabilité éditoriale de Mme Sylvia Waloryszek mandataire indépendant en immobilier (sans détention de fonds), agent commercial de la SAS I@D France immatriculé au RSAC de Lisieux sous le numéro 878884725, titulaire de la carte de démarchage immobilier pour le compte de la société I@D France SAS.
Mandat : 1818741
Diagnostic de Performance Énergétique (DPE)
Plus d'informations
-
Descriptif
- Nbre. de chambres : 4
- Nb. Parking : 1
- Nb. de pièces : 6
-
Superficies
- Superficie terrain : 2000 m²
- Surface habitable : 175 m²
-
Equipement
- Chauffage : electrique
-
Conditions
- Honoraires à charge de : vendeur
Localisation
Contactez nous
Pour plus d'informations sur cette annonce, n'hésitez pas à nous contacter