Vente
Appartement
à
Paris
610 000 €
Paris (75018)
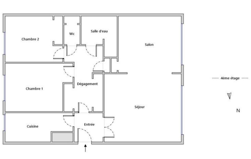
IMMOPOLIS vous propose secteur Mairie à proximité de la Rue Ordener ,cet appartement Au 4ème étage avec ascenseur d'un immeuble des années 80 bien entretenu.
Ce 4 Pièces de 70m² se compose : d'une Entrée, d'un double séjour plein Ouest, d'une cuisine indépendante aménagée et équipée, de 2 chambres, donnant sur jardin d'une Salle de bains d'un WC séparé avec buanderie ainsi que de nombreux rangements.
Une Cave ainsi qu'une place de Parking viennent compléter ce Bien.
Copropriété de 35 lots - dont 14 lots habitation. (Pas de procédure en cours).
Charges annuelles : 2200.00 euros.
Mandat : 2090
Diagnostic de Performance Énergétique (DPE)
Coût énergétique minimum :
1340.0000 €
Coût énergétique maximum :
1830.0000 €
Plus d'informations
-
Descriptif
- Cave
- Étage du bien : 4eme
- Nb. de WC : 1
- Nb. de salles d'eau : 1
- Ascenseur
- Nbre. d'étages : 6
- Nbre. de chambres : 3
- Nb. Parking : 1
- Nb. de pièces : 4
-
Loi ALUR
- Copropriété
- Nombre de lots de la copropriété : 35
- Moyenne de la quote part(an) : 2 200 €
- Détail de la procédure : Pas de procédure en cours
-
Equipement
- Digicode
- Chauffage : individuel electrique radiateur
- Interphone
-
Conditions
- Loyer de référence majoré : 2 010 €
- Encadrement des loyers
- Honoraires à charge de : vendeur
-
Environnement
- Calme
- Orientation : est,ouest
-
Etat
- Année de construction : 1980
-
Superficies
- Surface habitable : 70 m²
Localisation
Contactez nous
Pour plus d'informations sur cette annonce, n'hésitez pas à nous contacter
iMMOPOLiS - Ramey
Annonce 6192 /
80573