Vente
Maison
à
Balma
615 000 €
Balma (31130)
iad France - Aurélie Guiraud vous propose: Balma centre – Belle maison familiale 198 m², 5 chambres, jardin arboré piscinable
Idéalement située au cOEur de Balma, à proximité immédiate des écoles, commerces et transports, cette agréable maison familiale jumelée de 198 m² offre un cadre de vie confortable et convivial.
Elle séduit par ses volumes, sa luminosité et sa distribution fonctionnelle, pensée pour la vie de famille.
La pièce de vie de plus de 60 m² avec cuisine ouverte constitue le véritable cOEur de la maison, ouverte sur le jardin grâce à de grandes fenêtres orientées ouest.
Avec 5 chambres, dont une au rez-de-chaussée avec salle d’eau privative, la maison s’adapte parfaitement aux familles ou à l’accueil d’amis.
À l’extérieur, le jardin arboré de 475 m², piscinable, offre un cadre verdoyant et intime, idéal pour profiter pleinement des beaux jours.
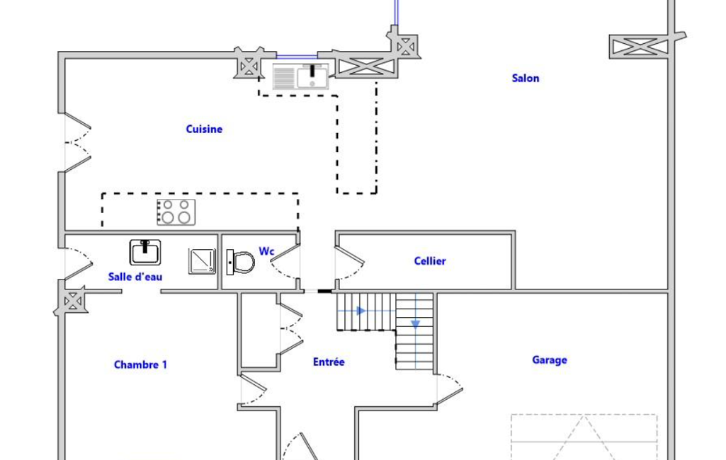
Rez-de-chaussée
Une entrée dessert :
•une première chambre avec salle d’eau privative, idéale pour recevoir ou pour une suite parentale de plain-pied
•un vaste espace de vie lumineux, composé d’un salon de 39 m²
•une cuisine ouverte aménagée et équipée de 23 m², conviviale et parfaitement intégrée à la pièce de vie
De grandes fenêtres orientées ouest apportent une belle luminosité et offrent une agréable ouverture sur le jardin.
Ce niveau comprend également :
•un WC indépendant
•un cellier / espace de rangement
•un garage de 21,5 m², actuellement utilisé comme espace de stockage.
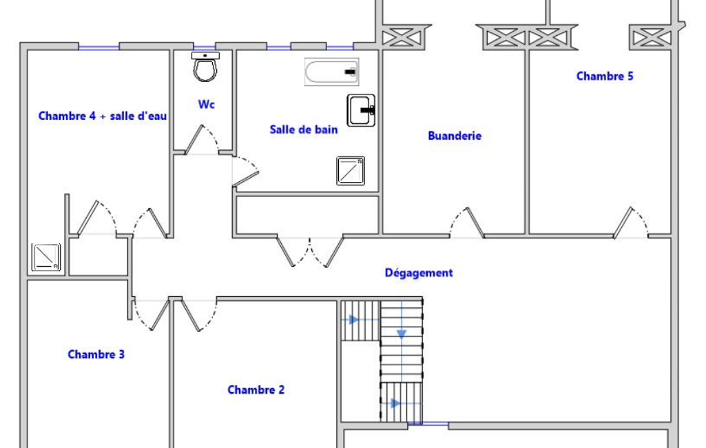
À l’étage
L’escalier mène à un grand palier lumineux de 28 m², véritable espace de vie pouvant accueillir coin jeux, lecture ou détente, avec de grandes ouvertures donnant sur un balcon.
L’étage distribue quatre chambres supplémentaires, dont :
•une chambre avec fenêtre Velux côté jardin
•deux chambres avec placards et fenêtres
•une chambre avec point d’eau / douche privative
On y trouve également :
•une salle de bain avec baignoire et douche, double vasque et sèche-serviettes
•une buanderie de 11,5 m²
•un bureau de 8,2 m²
•un WC indépendant
Les chambres offrent des surfaces confortables de 10,5 m2 à 18,5 m².
Extérieurs
Le jardin, joliment arboré, accueille :
•une terrasse exposée sud
•une pergola naturelle couverte de vignes
•de beaux arbres fruitiers, notamment figuier et olivier
•un abri de jardin pour le rangement.
Le terrain est piscinable, offrant un beau potentiel d’aménagement.
Prestations
Maison construite en 1967, rénovée et agrandie :
•extension réalisée en 2013
•agrandissement du salon en 2016
Maison bien entretenue et en bon état général.
Caractéristiques
•Surface habitable : 198,48 m²
•Surface totale : 227,95 m²
•Terrain : 475 m² piscinable
•5 chambres
•2 salles d’eau + 1 salle de bain (baignoire et douche)
•2 WC
•Buanderie + bureau
•Garage 21,5 m²
•DPE : C
- Maison familiale lumineuse de 198 m², idéalement située au cOEur de Balma.
5 chambres, beaux volumes et jardin arboré piscinable de 475 m² pour profiter pleinement de la vie en famille.
Une belle opportunité à découvrir sans tarder.
JE VOUS INVITE À ME CONTACTER RAPIDEMENT POUR UNE VISITE!
Honoraires d'agence à la charge du vendeur.
Information d'affichage énergétique sur ce bien : classe ENERGIE C indice 100 et classe CLIMAT C indice 21. Les informations sur les risques auxquels ce bien est exposé, y compris l'obligation légale de débroussaillement, sont disponibles sur le site Géorisques : http://www.georisques.gouv.fr.
La présente annonce immobilière a été rédigée sous la responsabilité éditoriale de Mme Aurélie Guiraud mandataire indépendant en immobilier (sans détention de fonds), agent commercial de la SAS I@D France immatriculé au RSAC de TOULOUSE sous le numéro 891144768, titulaire de la carte de démarchage immobilier pour le compte de la société I@D France SAS.
Mandat : 1967856
Diagnostic de Performance Énergétique (DPE)
Plus d'informations
-
Descriptif
- Nbre. d'étages : 1
- Nbre. de chambres : 5
- Nb. de pièces : 7
-
Equipement
- Câble TV
- Chauffage : gaz radiateur
-
Superficies
- Superficie terrain : 475 m²
- Surface habitable : 198 m²
-
Etat
- Année de construction : 1968
-
Conditions
- Honoraires à charge de : vendeur
Localisation
Contactez nous
Pour plus d'informations sur cette annonce, n'hésitez pas à nous contacter