Vente
Immeuble
à
Cambrai
315 000 €
Cambrai (59400)
iad France - Julien Pagniez vous propose: Nouveauté : Opportunité incroyable, idéale pour Investisseurs,
A l'entrée du Centre Ville de Cambrai (1 min à pied de la place Aristide Briand),
Je vous propose un Immeuble d'exception de 502 m2 sur 3 étages,
à rénover entièrement et à usage d'habitation (possibilité de modifier à un usage commercial ou des bureaux).
Ce bâtiment historique se compose de la manière suivante :
Rez-de-chaussée : entrée commune (3 étages + accès PMR Banque, copropriété bénévole existante)
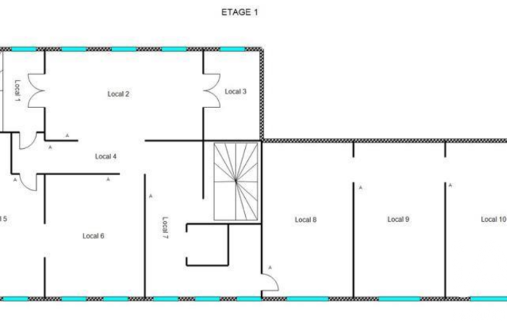
Etage 1 : 180 m²
Etage 2 : 178 m²
Etage 3 : 143 m²
1 Escalier allant du rez-de-chaussée aux 3 étages et 1 Escalier allant du 1er au 2 autres étages !
Pas de charges de copropriété
Taxe Foncière 2025 : 3 598€
Gare, Station de Bus, Navette gratuite, tous les transports en commun seront à proximité à pied.
Vous souhaitez créer plusieurs logements, des bureaux, les 2 peut-être, etc...
Laissez place à votre imagination durant une belle visite !
La presente annonce immobiliere vise 1 lot situé dans une copropriété de 2 lots au total et ne faisant l'objet d'aucune procédure en cours citée à l'article L. 721-1 du code de la construction et de l'habitation. Montant moyen mensuel de charges déclaré par le vendeur : 0€ par mois (soit 0 € annuel). Honoraires d'agence à la charge du vendeur.
Bien non soumis au DPE. Les informations sur les risques auxquels ce bien est exposé, y compris l'obligation légale de débroussaillement, sont disponibles sur le site Géorisques : http://www.georisques.gouv.fr.
La présente annonce immobilière a été rédigée sous la responsabilité éditoriale de M Julien Pagniez mandataire indépendant en immobilier (sans détention de fonds), agent commercial de la SAS I@D France immatriculé au RSAC de Douai sous le numéro 900211483, titulaire de la carte de démarchage immobilier pour le compte de la société I@D France SAS.
Mandat : 1972108
Diagnostic de Performance Énergétique (DPE)
Plus d'informations
-
Loi ALUR
- Copropriété
- Nombre de lots de la copropriété : 2
-
Descriptif
- Nbre. d'étages : 3
-
Etat
- Année de construction : 1830
-
Conditions
- Honoraires à charge de : vendeur
-
Superficies
- Surface habitable : 502 m²
Localisation
Contactez nous
Pour plus d'informations sur cette annonce, n'hésitez pas à nous contacter