Vente
Maison
à
Villejuif
299 000 €
Villejuif (94800)
iad France - Charlotte SAGON vous propose: Maison de 93m² sur Villejuif Louis Aragon
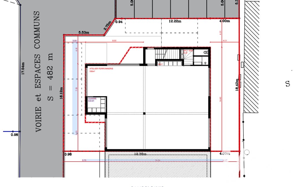
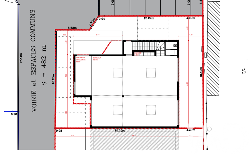
Bâtiment avec permis de construire validé pour une maison individuelle de 93m2
Situé à 5 minutes de Villejuif Louis Aragon M7 M15 et T7 vous bénéficiez d'un emplacement privilégié, zone pavillonnaire avec commerces, écoles et services à proximité immédiate.
Projet de maison 93 M2 avec 3 chambres, de plein pied avec jardin privé de 100m2 + place de parking.
Devis validé pour la construction : 100 000 euros.
Permis de construire validé en mairie, des plans de la maison sont disponibles sur demande.
Affaire à saisir rapidement !
Honoraires d'agence à la charge de l'acquéreur. Prix honoraires inclus : 299000 euros. Prix hors honoraires : 287000 euros. Honoraires TTC à la charge de l'acquéreur (4,18% du prix du bien hors honoraires) : 12000 euros.
Information d'affichage énergétique sur ce bien : classe ENERGIE G indice 360 et classe CLIMAT G indice 103. Les informations sur les risques auxquels ce bien est exposé, y compris l'obligation légale de débroussaillement, sont disponibles sur le site Géorisques : http://www.georisques.gouv.fr.
La présente annonce immobilière a été rédigée sous la responsabilité éditoriale de Mme Charlotte SAGON mandataire indépendant en immobilier (sans détention de fonds), agent commercial de la SAS I@D France immatriculé au RSAC de Créteil sous le numéro 881276505, titulaire de la carte de démarchage immobilier pour le compte de la société I@D France SAS.
Mandat : 2004831
Diagnostic de Performance Énergétique (DPE)
Plus d'informations
-
Conditions
- Honoraires : 12 000 €
- Prix hors honoraires acquéreur : 287 000 €
- Honoraires à charge de : acquéreur
-
Descriptif
- Nbre. de chambres : 3
- Nb. de pièces : 4
-
Superficies
- Superficie terrain : 100 m²
- Surface habitable : 93 m²
Localisation
Contactez nous
Pour plus d'informations sur cette annonce, n'hésitez pas à nous contacter