Vente
Appartement
à
Givrand
245 000 €
Givrand (85800)
iad France - Maryse Bonny (07 71 66 73 30) vous propose : À deux pas de la mer – T2 neuf avec balcon, cadre verdoyant et sécurisé
Implanté dans un écrin de verdure, au sein d’un environnement calme et résidentiel, ce T2 neuf en VEFA offre un cadre de vie idéal entre nature, tranquillité et bien-être, tout en restant à proximité immédiate des commerces essentiels.
Un emplacement privilégié, à deux pas de la mer, aux portes des stations balnéaires, où tout se fait à pied ou à vélo.
Situé dans une résidence sécurisée par digicode, ce logement a été pensé pour conjuguer confort, fonctionnalité et qualité de vie.
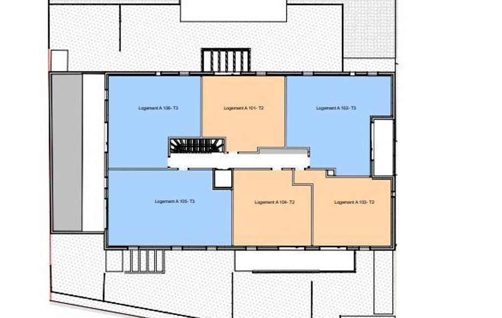
Description du logement, d’une surface habitable d’environ 46 m² environ, ce T2 se compose de :
Un séjour lumineux de 22,5 m² environ, avec cuisine ouverte, spacieux et agréable à vivre, Une chambre confortable d’environ 10,9 m² environ, bien proportionnée, Une salle d’eau moderne,
WC séparés, Un cellier de 2,3 m² environ, idéal pour le rangement,
Un balcon de 7,7 m² environ et de deux places de stationnement privatives.
Prestations & cadre de vie, Résidence sécurisée, Construction neuve répondant aux normes environnementales RE 2020 + NF, Confort thermique et acoustique optimisé
Avantages acquéreur, Frais de notaire réduits,
Éligible, selon situation, aux dispositifs d’aide de l’État (primo-accédants, investisseurs), Logement neuf, sans travaux, prêt à accueillir votre projet de vie ou locatif
Un bien équilibré, lumineux et fonctionnel, idéal pour habiter ou investir, dans une terre accueillante où l’on pose ses valises et respire.
Honoraires d’agence à la charge du vendeur. Bien non soumis au DPE. Les informations sur les risques auxquels ce bien est exposé sont disponibles sur le site Géorisques : www.georisques.gouv.fr. La présente annonce immobilière a été rédigée sous la responsabilité éditoriale de Mlle Maryse Bonny EI (ID 86268), mandataire indépendant en immobilier (sans détention de fonds), agent commercial de la SAS I@D France immatriculé au RSAC de LA ROCHE SUR YON sous le numéro 939986485, titulaire de la carte de démarchage immobilier pour le compte de la société I@D France SAS.
Retrouvez tous nos biens sur notre site internet. www.iadfrance.fr
Mandat : 1924154-11
Diagnostic de Performance Énergétique (DPE)
Plus d'informations
-
Descriptif
- Ascenseur
- Nbre. d'étages : 1
- Nbre. de chambres : 1
- Nb. de pièces : 2
-
Equipement
- Digicode
- Interphone
-
Superficies
- Surface du balcon : 8 m²
- Surface habitable : 46 m²
-
Etat
- Année de construction : 2026
-
Conditions
- Honoraires à charge de : vendeur
Localisation
Contactez nous
Pour plus d'informations sur cette annonce, n'hésitez pas à nous contacter