Vente
Appartement
à
Montaigu
275 000 €
Montaigu (85600)
iad France - Mathilde Leroux vous propose: APPARTEMENT - T3 - CENTRE MONTAIGU - 2EME & DERNIER ETAGE - TERRASSE - 3 STATIONNEMENTS
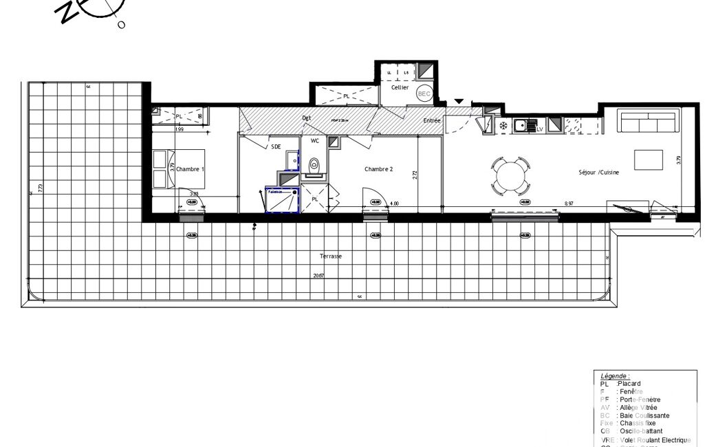
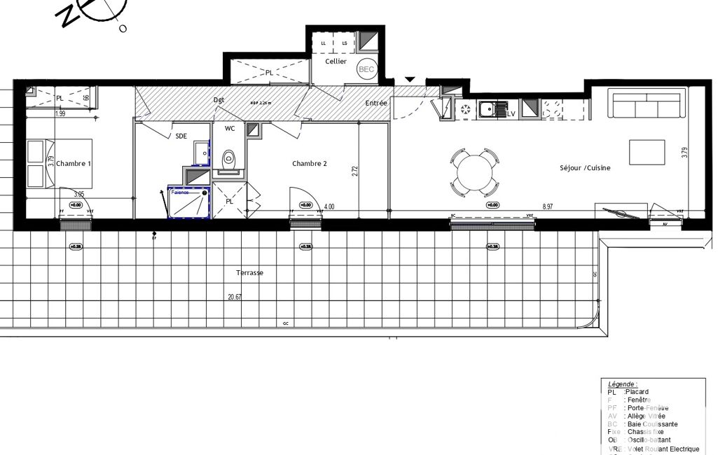
Situé à proximité de toutes les commodités, venez découvrir ce T3 de 72m² environ avec sa grande terrasse.
Il comprend : une entrée, un séjour/cuisine, un cellier, deux chambres, une salle d'eau, et un WC.
Trois stationnements aériens et un local à vélo complètent le lot.
Résidence MONA LISA, idéale pour habiter ou investir ! FRAIS DE NOTAIRE REDUITS - NORMES RE2020 - VISITES SUR RDV.
Mathilde Leroux - iad France, votre conseillère en immobilier sur Saint Hilaire de Clisson et alentours.
Avis de valeur OFFERT.
La presente annonce immobiliere vise 5 lots situés dans une copropriété de 73 lots au total et ne faisant l'objet d'aucune procédure en cours citée à l'article L. 721-1 du code de la construction et de l'habitation. Montant moyen mensuel de charges déclaré par le vendeur : 0€ par mois (soit 0 € annuel). Honoraires d'agence à la charge du vendeur.
Information d'affichage énergétique sur ce bien : classe ENERGIE A indice 62 et classe CLIMAT A indice 1. Les informations sur les risques auxquels ce bien est exposé, y compris l'obligation légale de débroussaillement, sont disponibles sur le site Géorisques : http://www.georisques.gouv.fr.
La présente annonce immobilière a été rédigée sous la responsabilité éditoriale de Mme Mathilde Leroux mandataire indépendant en immobilier (sans détention de fonds), agent commercial de la SAS I@D France immatriculé au RSAC de NANTES sous le numéro 990458747, titulaire de la carte de démarchage immobilier pour le compte de la société I@D France SAS.
Mandat : 1971410
Diagnostic de Performance Énergétique (DPE)
Plus d'informations
-
Descriptif
- Étage du bien : 2eme
- Terrasse
- Nbre. d'étages : 2
- Nbre. de chambres : 2
- Nb. Parking : 1
- Nb. de pièces : 3
-
Equipement
- Digicode
- Chauffage : collectif electrique radiateur
- Interphone
-
Loi ALUR
- Copropriété
- Nombre de lots de la copropriété : 73
-
Etat
- Année de construction : 2025
-
Conditions
- Honoraires à charge de : vendeur
-
Superficies
- Surface habitable : 72 m²
Localisation
Contactez nous
Pour plus d'informations sur cette annonce, n'hésitez pas à nous contacter