Vente
Appartement
à
Vienne
139 000 €
Vienne (38200)
iad France - Cléa Marmonnier vous propose: ***Fort potentiel*** Grand appartement divisible en 2 lots – 124 m² ***Idéal investisseur ou grande famille***
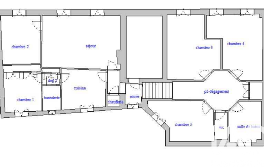
À deux pas du centre-ville de Vienne dans un immeuble ancien, découvrez ce spacieux appartement de 124 m², situé au 2ᵉ étage d’une petite copropriété.
Cet appartement se distingue par son potentiel exceptionnel selon votre projet (investissement, locatif, projet familial..) il offre de multiples possibilités avec ses 2 entrées.
L'appartement est actuellement composé de son côté droit par une entrée, un séjour lumineux, une cuisine séparée, une pièce d’eau et deux chambres.
Du coté gauche, un vaste espace pouvant devenir une pièce de vie, 3 chambres, une salle de bain et un sanitaire indépendant.
Au total, l'appartement dispose de 5 chambres, avec de nombreuses possibilité d'aménagement selon vos besoins.
Côté technique :
Menuiseries PVC double vitrage bois - Volets roulants manuel - Chaudière gaz récente
De plus, le logement dispose de 2 caves privatives.
Aménagement modulable selon vos projets : T2 + T3, grand appartement familial.. Travaux d'aménagements à prévoir selon la configuration choisie.
***A VENIR DÉCOUVRIR SANS TARDER***
La presente annonce immobiliere vise 4 lots situés dans une copropriété de 23 lots au total et ne faisant l'objet d'aucune procédure en cours citée à l'article L. 721-1 du code de la construction et de l'habitation. Montant moyen mensuel de charges déclaré par le vendeur : 100€ par mois (soit 1200 € annuel). Honoraires d'agence à la charge du vendeur.
Information d'affichage énergétique sur ce bien : classe ENERGIE D indice 185 et classe CLIMAT D indice 40. Les informations sur les risques auxquels ce bien est exposé, y compris l'obligation légale de débroussaillement, sont disponibles sur le site Géorisques : http://www.georisques.gouv.fr.
La présente annonce immobilière a été rédigée sous la responsabilité éditoriale de Mme Cléa Marmonnier mandataire indépendant en immobilier (sans détention de fonds), agent commercial de la SAS I@D France immatriculé au RSAC de Saint Etienne sous le numéro 984629832, titulaire de la carte de démarchage immobilier pour le compte de la société I@D France SAS.
Mandat : 1964065
Diagnostic de Performance Énergétique (DPE)
Plus d'informations
-
Loi ALUR
- Copropriété
- Nombre de lots de la copropriété : 23
- Moyenne de la quote part(an) : 1 200 €
-
Equipement
- Chauffage : individuel gaz radiateur
- Interphone
-
Conditions
- Honoraires à charge de : vendeur
-
Descriptif
- Nb. de pièces : 6
-
Superficies
- Surface habitable : 124 m²
Localisation
Contactez nous
Pour plus d'informations sur cette annonce, n'hésitez pas à nous contacter