Vente
Appartement
à
Saint-Cloud
610 000 €
Saint-Cloud (92210)
iad France - Nathalie Nadal vous propose: Opportunité à Saisir - Appartement familial de 6 pièces à Saint-Cloud
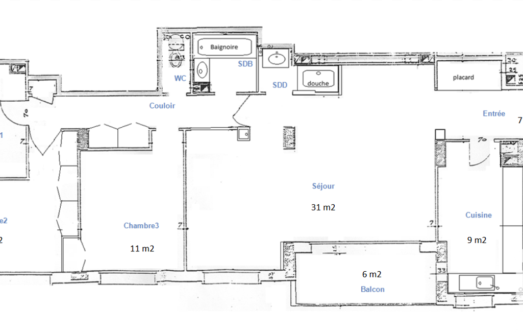
Situé dans le quartier du Val d'Or, cet appartement familial de 104m² offre un cadre de vie idéal pour une famille recherchant confort, espace et commodités. Au 1er étage d'un immeuble, cet appartement rénové bénéficie d'une situation privilégiée proche des commerces, écoles et transports en commun.
L'appartement se compose d'un double séjour, de 4 belles chambres, offrant un espace intimiste à chacun des membres de la famille. De plus, un bureau peut être aménagé selon vos besoins, offrant ainsi un espace de travail à domicile idéal. La pièce de vie principale est spacieuse, idéale pour se retrouver en famille ou entre amis avec une cuisine ouverte et équipée.
L'appartement bénéficie d'une salle de bain, d'une salle d'eau et d'un WC séparé pour plus de confort et d'intimité. Vous pourrez également profiter d'un balcon pour prendre l'air frais, lire un livre ou déguster un café, offrant ainsi un espace extérieur privé.
Les équipements et finitions de qualité tels que la fibre optique, l'ascenseur, le chauffage au gaz naturel avec distribution par le sol vous assurent un confort optimal au quotidien. L'appartement bénéficie d'un parking en sus.
Le bien, situé au milieu d'un parc bénéficie de deux terrains de tennis, est un véritable havre de paix pour toute la famille. Les commerces, écoles et espaces verts se trouvent à proximité immédiate, offrant un cadre de vie idéal.
Aucun travaux n'est à prévoir, cet appartement est prêt à vous accueillir dans les meilleures conditions. Avec une grande cave pour plus de rangement, cet appartement répondra à tous vos besoins en matière de confort et de praticité.
Contactez-nous vite pour organiser une visite et saisir cette opportunité de vivre dans un appartement familial de qualité à Saint-Cloud.
La presente annonce immobiliere vise 2 lots situés dans une copropriété de 600 lots au total et ne faisant l'objet d'aucune procédure en cours citée à l'article L. 721-1 du code de la construction et de l'habitation. Montant moyen mensuel de charges déclaré par le vendeur : 483.33€ par mois (soit 5799.96 € annuel). Honoraires d'agence à la charge du vendeur.
Information d'affichage énergétique sur ce bien : classe ENERGIE D indice 197 et classe CLIMAT D indice 33. Les informations sur les risques auxquels ce bien est exposé, y compris l'obligation légale de débroussaillement, sont disponibles sur le site Géorisques : http://www.georisques.gouv.fr.
La présente annonce immobilière a été rédigée sous la responsabilité éditoriale de Mme Nathalie Nadal mandataire indépendant en immobilier (sans détention de fonds), agent commercial de la SAS I@D France immatriculé au RSAC de Nanterre sous le numéro 828454207, titulaire de la carte de démarchage immobilier pour le compte de la société I@D France SAS.
Mandat : 1907509
Diagnostic de Performance Énergétique (DPE)
Plus d'informations
-
Descriptif
- Étage du bien : 1er
- Gardien
- Ascenseur
- Nbre. d'étages : 8
- Nbre. de chambres : 4
- Nb. de pièces : 6
-
Equipement
- Câble TV
- Chauffage : collectif gaz
- Interphone
-
Loi ALUR
- Copropriété
- Nombre de lots de la copropriété : 600
- Moyenne de la quote part(an) : 5 799.96 €
-
Etat
- Année de construction : 1956
-
Conditions
- Honoraires à charge de : vendeur
-
Superficies
- Surface habitable : 104 m²
Localisation
Contactez nous
Pour plus d'informations sur cette annonce, n'hésitez pas à nous contacter