Vente
Maison
à
Le Barp
499 000 €
Le Barp (33114)
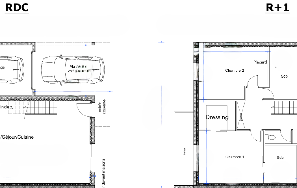
iad France - Antoine Bardin vous propose: Magnifique maison neuve de 2026 mitoyenne d'environ 159 m² habitables, aux normes RE2020, composée d' un grand séjour avec sa cuisine américaine, de 4 chambres dont une suite parentale, un jardin, une cour pavée donnant sur le garage. La parcelle a une superficie d'environ 297 m².
Construite en 2026, cette maison offre un cadre de vie exceptionnel, idéal pour une famille en quête de tranquillité et de modernité.
**Description des pièces:**
- 1 grand séjour avec une cuisine américaine aménagée, idéal pour des moments conviviaux.
- 4 chambres spacieuses pour accueillir toute la famille dont une suite parentale (Salle d'eau et dressing aménagé donnant sur un balcon). Chaque chambre possède son placard aménagé.
- 1 Salle de bain avec douche et baignoire.
- 2 WC indépendants, un au rez-de-chaussée et un à l'étage (1 wc supplémentaire dans la SDE)
- Cellier pour plus de praticité avec accès au garage.
**Avantages:**
- Jardin pour des moments de détente en plein air
- Garage et place de parking pour faciliter le stationnement sur une cour pavée.
- Balcon et terrasse pour profiter des extérieurs
- Confort thermique optimum grâce à son système de climatisation gainable réversible. (DPE : A)
- Construction neuve offrant un aspect moderne et des prestations de qualité
- Expositions Est et Ouest pour une luminosité optimale tout au long de la journée
**Situation Géographique:**
- Proximité des commodités à seulement 500 mètres des commerces et du centre-ville
- Facilité d'accès avec l'autoroute à 8.7 km et la gare à 12.2 km
- Proximité des écoles et lycées à moins de 2 km
Cette maison est le compromis parfait entre modernité, fonctionnalité et qualité de vie. Ne manquez pas cette occasion unique de vivre dans un cadre de vie exceptionnel à Le Barp.
L'élégance contemporaine n'attend que vous !
Contactez-moi pour plus d'informations et organiser une visite.
Honoraires d'agence à la charge du vendeur.
Information d'affichage énergétique sur ce bien : classe ENERGIE A indice 22 et classe CLIMAT A indice 1. Les informations sur les risques auxquels ce bien est exposé, y compris l'obligation légale de débroussaillement, sont disponibles sur le site Géorisques : http://www.georisques.gouv.fr.
La présente annonce immobilière a été rédigée sous la responsabilité éditoriale de M Antoine Bardin mandataire indépendant en immobilier (sans détention de fonds), agent commercial de la SAS I@D France immatriculé au RSAC de BORDEAUX sous le numéro 991903501, titulaire de la carte de démarchage immobilier pour le compte de la société I@D France SAS.
Mandat : 1960776
Diagnostic de Performance Énergétique (DPE)
Plus d'informations
-
Equipement
- Câble TV
- Chauffage : electrique
- Interphone
- Climatisation
-
Descriptif
- Terrasse
- Nbre. d'étages : 2
- Nbre. de chambres : 4
- Nb. de pièces : 5
-
Superficies
- Surface du balcon : 3 m²
- Surface terrasse : 28 m²
- Superficie terrain : 297 m²
- Surface habitable : 159 m²
-
Etat
- Année de construction : 2026
-
Conditions
- Honoraires à charge de : vendeur
Localisation
Contactez nous
Pour plus d'informations sur cette annonce, n'hésitez pas à nous contacter