Vente
Maison
à
Anglet
690 000 €
Anglet (64600)
iad France - Luis Do Souto vous propose: Maison individuelle à rénover secteur Montbrun Maharin à ANGLET
Emplacement privilégié au calme dans un quartier résidentiel.
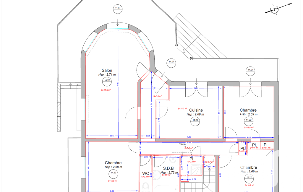
Surface habitable environ 180 m² sur 2 niveaux (dont garage en rez-de-jardin).
Terrain de 1351 m² dont 222 m² de voie privée et 59 m² de servitude de passage, soit une surface utile de 1070 m².
A proximité du parc du Maharin et de la forêt du Pignada à ANGLET, à quelques minutes des plages et des commerces.
Cette localisation vous offre un accès facile aux écoles, aux infrastructures sportives et à tous vos besoins quotidiens.
Renseignements complémentaires sur demande. Visite sur rendez-vous.
Honoraires d'agence à la charge du vendeur.
Information d'affichage énergétique sur ce bien : classe ENERGIE F indice 304 et classe CLIMAT F indice 95. Les informations sur les risques auxquels ce bien est exposé, y compris l'obligation légale de débroussaillement, sont disponibles sur le site Géorisques : http://www.georisques.gouv.fr.
La présente annonce immobilière a été rédigée sous la responsabilité éditoriale de M Luis Do Souto mandataire indépendant en immobilier (sans détention de fonds), agent commercial de la SAS I@D France immatriculé au RSAC de Bayonne sous le numéro 437990310, titulaire de la carte de démarchage immobilier pour le compte de la société I@D France SAS.
Mandat : 1997786
Diagnostic de Performance Énergétique (DPE)
Plus d'informations
-
Descriptif
- Terrasse
- Nbre. d'étages : 2
- Nbre. de chambres : 3
- Nb. Parking : 1
- Nb. de pièces : 4
-
Superficies
- Superficie terrain : 1351 m²
- Surface habitable : 180 m²
-
Equipement
- Câble TV
-
Etat
- Année de construction : 1969
-
Conditions
- Honoraires à charge de : vendeur
Localisation
Contactez nous
Pour plus d'informations sur cette annonce, n'hésitez pas à nous contacter