Vente
Appartement
à
Antibes
530 000 €
Antibes (06600)
iad France - Sarah Rozière (06 99 86 19 42) vous propose : Appartement 4 pièces avec jardin.
BIEN LIRE L’ANNONCE !
APPARTEMENT DISPONIBLE 2027 !
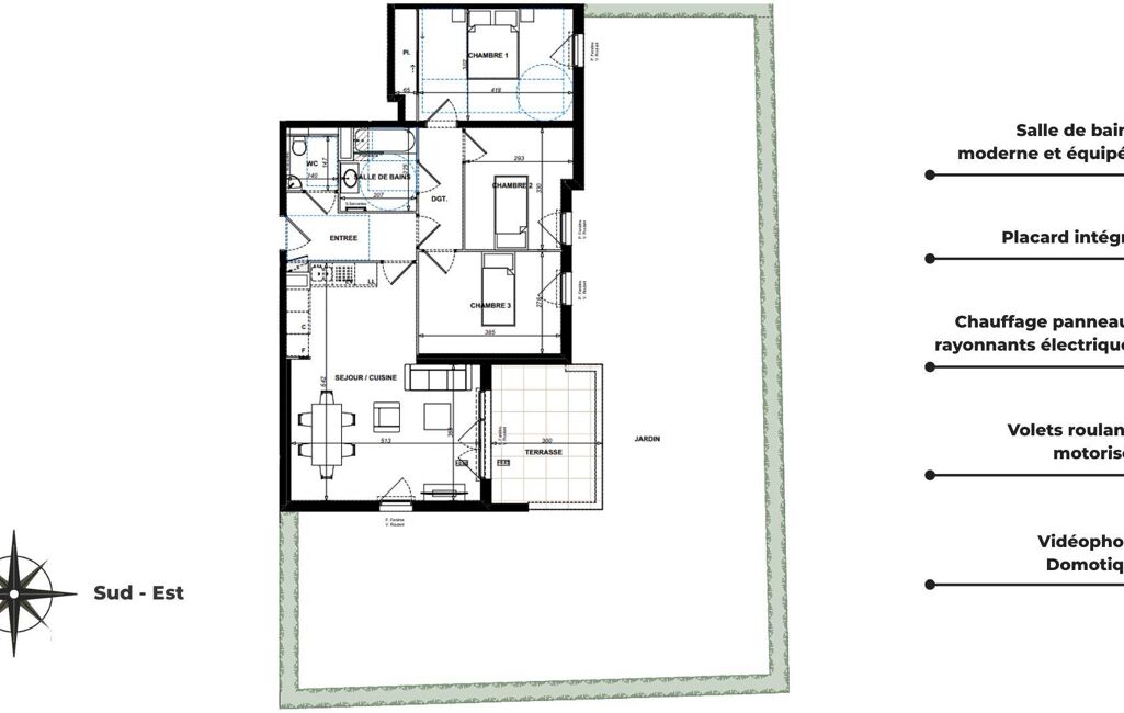
Situé au cOEur du projet La Roseraie d’Antipolis, sur la route de Grasse à Antibes, cet appartement 4 pièces offre une belle opportunité de vivre dans un environnement alliant nature, modernité et dynamisme économique.
Ce bien de 77 m² environ, situé au rez-de-jardin d’une résidence de standing sécurisée avec ascenseur, bénéficie d’un agencement optimisé et de prestations de qualité.
Dès l’entrée, vous découvrirez un agréable séjour avec cuisine ouverte de 28 m² environ, prolongé par un jardin de 139 m² environ. Orienté Sud-Est, c'est l’exposition parfaite pour profiter d’un salon baigné de lumière tout au long de la journée.
L’espace nuit se compose de trois chambres confortables, ainsi que d’une salle de bains moderne conçue avec des matériaux contemporains et des finitions soignées. Un stationnement privatif en sous-sol complète ce bien.
La performance énergétique est au rendez-vous, garantissant un confort durable et des charges maîtrisées. Pas de travaux à prévoir et vous disposez d’une liberté de personnalisation pour créer un intérieur à votre image.
Vivre ici, c’est intégrer un quartier en pleine transformation, avec un projet urbain ambitieux visant à offrir une nouvelle identité, plus moderne, végétale et agréable à vivre. La résidence s’inscrit dans un environnement calme, avec un cOEur d’îlot paysager propice à la détente.
L’emplacement est particulièrement stratégique : le Bus-Tram se situe au pied de la résidence (arrêt Croix Rouge – Square Cerutti), permettant de relier rapidement le pôle d’échanges d’Antibes à la technopole de Sophia Antipolis.
À quelques minutes seulement, Sophia Antipolis, l’une des technopoles les plus dynamiques d’Europe, garantit une forte attractivité et une demande locative soutenue. Que ce soit pour y vivre ou pour investir, ce bien représente une belle opportunité dans un secteur en plein essor.
Augmentez votre capital en réduisant les frais de notaire et profitez d’un cadre de vie moderne, performant et clé en main.
Besoin de plus d’informations ou d’un accompagnement personnalisé ? N’hésitez pas à me contacter.
Honoraires d’agence à la charge du vendeur. Bien non soumis au DPE. Les informations sur les risques auxquels ce bien est exposé sont disponibles sur le site Géorisques : www.georisques.gouv.fr. La présente annonce immobilière a été rédigée sous la responsabilité éditoriale de Mlle Sarah Rozière EI (ID 83696), mandataire indépendant en immobilier (sans détention de fonds), agent commercial de la SAS I@D France immatriculé au RSAC de Clermont-Ferrand sous le numéro 978616993, titulaire de la carte de démarchage immobilier pour le compte de la société I@D France SAS.
Retrouvez tous nos biens sur notre site internet. www.iadfrance.fr
Mandat : 1866981-10
Diagnostic de Performance Énergétique (DPE)
Plus d'informations
-
Descriptif
- Terrasse
- Ascenseur
- Nbre. d'étages : 2
- Nbre. de chambres : 3
- Nb. Parking : 1
- Nb. de pièces : 4
-
Equipement
- Câble TV
- Digicode
- Placards
- Chauffage : individuel electrique radiateur
- Interphone
-
Conditions
- Honoraires à charge de : vendeur
-
Superficies
- Surface habitable : 77 m²
Localisation
Contactez nous
Pour plus d'informations sur cette annonce, n'hésitez pas à nous contacter