Vente
Maison
à
Doue
195 000 €
Doue (77510)
iad France - Aurelie MONGERMON vous propose: ** Maison briarde de 126 m² À RÉNOVER, terrain de 2 061 m² **
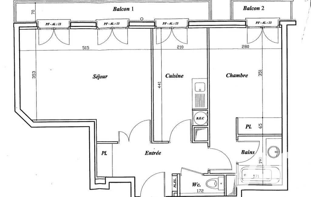
Située sur un terrain de 2 061 m² dans le charmant village de Doue, venez découvrir cette authentique maison briarde d'une surface habitable de 126 m², À RÉNOVER, offrant un fort potentiel dans un environnement calme et verdoyant.
Au rez-de-chaussée, vous serez séduit par une grande entrée desservant, d’un côté, une cuisine aménagée et équipée, un séjour lumineux avec cheminée, une chambre, un wc indépendant et une salle de bain. De l’autre côté, vous disposerez d'une chaufferie et d'une seconde chambre.
A l'étage, une grande chambre de 23 m² vous attend, accompagnée de deux greniers aménageables offrant un potentiel supplémentaire d’environ 70 m², idéal pour créer de nouveaux espaces selon vos besoins.
Enfin, un garage ainsi qu'une cave voutée viennent compléter l'ensemble.
Côté prestations : la toiture et la charpente sont en bon état. Double vitrage pvc (à l'exception de quelques fenêtres qui restent à changer), chauffage fuel et ASSAINISSEMENT individuel CONFORME. Fibre dans la rue.
Etaiement d'une poutre visible sur l'une des photos, remédiable par une reprise structurelle simple avec devis à l'appui.
Avec son cachet, son beau jardin et ses nombreuses possibilités d’aménagement, cette maison représente une belle opportunité pour les amateurs de travaux.
À visiter sans tarder !
Honoraires d'agence à la charge du vendeur.
Information d'affichage énergétique sur ce bien : classe ENERGIE E indice 203 et classe CLIMAT E indice 63. Les informations sur les risques auxquels ce bien est exposé, y compris l'obligation légale de débroussaillement, sont disponibles sur le site Géorisques : http://www.georisques.gouv.fr.
La présente annonce immobilière a été rédigée sous la responsabilité éditoriale de Mme Aurelie MONGERMON mandataire indépendant en immobilier (sans détention de fonds), agent commercial de la SAS I@D France immatriculé au RSAC de MEAUX sous le numéro 829649870, titulaire de la carte de démarchage immobilier pour le compte de la société I@D France SAS.
Mandat : 2001210
Diagnostic de Performance Énergétique (DPE)
Plus d'informations
-
Descriptif
- Cave
- Nbre. d'étages : 2
- Nbre. de chambres : 2
- Nb. de pièces : 5
-
Superficies
- Superficie terrain : 2061 m²
- Surface habitable : 126 m²
-
Equipement
- Chauffage : fuel radiateur
-
Conditions
- Honoraires à charge de : vendeur
Localisation
Contactez nous
Pour plus d'informations sur cette annonce, n'hésitez pas à nous contacter