Vente
Duplex
à
Rennes
371 400 €
Rennes (35000)
iad France - Lucrèce Hervieux vous propose: Livraison Décembre 2025 ! Frais de notaires réduits.
Au coeur de Rennes, idéalement situé à 500m des métros Sainte Anne et Jules Ferry et du Parc du Thabor. Et à quelques pas de la Faculté de Rennes 1.
Profitez de tous les avantages d'un achat VEFA, d'un logement neuf, mais avec la possibilité de visiter l'appartement et d'avoir les clefs sans attendre ! Coup de coeur pour son emplacement numéro 1 à Rennes et la qualité de ces matériaux.
Dans un petit collectif sécurisé de 14 logements disponibles à la vente, découvrez sa belle architecture alliant l'authenticité, avec sa façade sur rue, en véritables pierres de tuffeau et la modernité de la brique donnant à l'arrière sur les jardins.
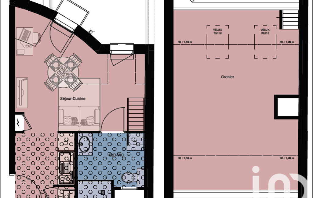
Ici, vous trouverez un Duplex type 2 de 50m2, en surface utile, au 3ème et dernier étage avec ascenseur, une pièce de vie lumineuse de 20m2, avec un espace cuisine et un balcon à l'ouest, une salle d'eau avec douche et wc. Ainsi qu'une grande chambre de 25m2.
Chaudière individuelle pour la production d'eau chaude et radiateurs à inertie pour le chauffage. Faibles charges de copropriété.
Locaux vélos communs.
Dossier et photos sur demande. Je suis au même prix que le promoteur.
Construction BBC.
La presente annonce immobiliere vise 1 lot situé dans une copropriété de 14 lots au total et ne faisant l'objet d'aucune procédure en cours citée à l'article L. 721-1 du code de la construction et de l'habitation. Montant moyen mensuel de charges déclaré par le vendeur : 40€ par mois (soit 480 € annuel). Honoraires d'agence à la charge du vendeur.
Bien non soumis au DPE. Les informations sur les risques auxquels ce bien est exposé, y compris l'obligation légale de débroussaillement, sont disponibles sur le site Géorisques : http://www.georisques.gouv.fr.
La présente annonce immobilière a été rédigée sous la responsabilité éditoriale de Mme Lucrèce Hervieux mandataire indépendant en immobilier (sans détention de fonds), agent commercial de la SAS I@D France immatriculé au RSAC de RENNES sous le numéro 805300449, titulaire de la carte de démarchage immobilier pour le compte de la société I@D France SAS.
Mandat : 1797600
Diagnostic de Performance Énergétique (DPE)
Plus d'informations
-
Descriptif
- Nbre. d'étages : 3
- Nbre. de chambres : 1
- Nb. de pièces : 2
-
Loi ALUR
- Copropriété
- Nombre de lots de la copropriété : 14
- Moyenne de la quote part(an) : 480 €
-
Etat
- Année de construction : 2025
-
Conditions
- Honoraires à charge de : vendeur
-
Superficies
- Surface habitable : 50 m²
Localisation
Contactez nous
Pour plus d'informations sur cette annonce, n'hésitez pas à nous contacter