Vente
Maison
à
Montesson
629 900 €
Montesson (78360)
iad France - Sulyvan Pereira (06 01 85 33 52) vous propose : À quelques pas de la plaine maraîchère de Montesson, cette maison T6 offre un cadre de vie paisible dans un environnement résidentiel apprécié pour son esprit familial et sa proximité avec la nature. Les chemins qui longent les cultures invitent aux balades matinales, tandis que le centre-ville et ses commerces restent accessibles en quelques minutes.
L’adresse permet un quotidien simple et parfaitement connecté. La gare de Sartrouville se rejoint en neuf minutes à vélo, offrant un accès direct au RER A et aux lignes J/L vers La Défense en dix-sept minutes et Paris Saint-Lazare en vingt-neuf minutes. Les déplacements se font naturellement, que ce soit pour le travail, les loisirs ou les trajets scolaires.
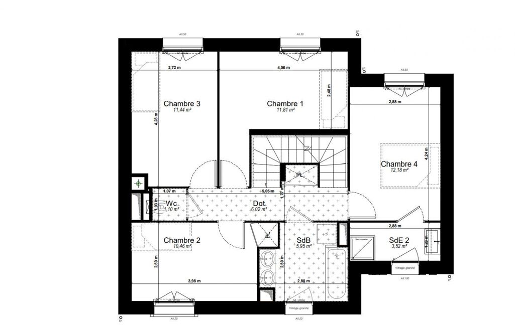
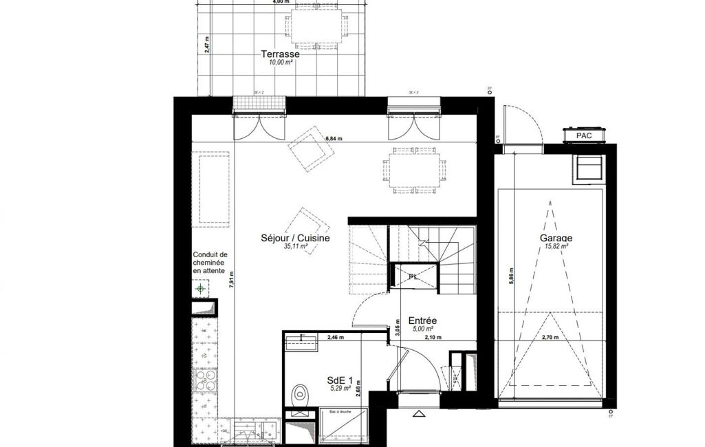
La maison déploie des volumes généreux avec un espace de vie traversant qui accueille les moments partagés. La cuisine ouverte accompagne la vie familiale et permet de conserver une vraie convivialité au quotidien. La suite parentale, située à l’écart, bénéficie de sa propre salle d’eau pour préserver l’intimité du couple. Les chambres supplémentaires, spacieuses, sont pensées pour répondre aux besoins d’une famille avec plusieurs enfants, d’un adolescent souhaitant plus d’autonomie ou d’un bureau pour télétravailler dans de bonnes conditions.
Le jardin privatif et la terrasse prolongent naturellement la maison vers l’extérieur. On peut y prévoir des repas d’été, laisser les enfants jouer après l’école ou profiter d’un moment de calme sans quitter son chez-soi.
La construction assure un confort contemporain grâce à une isolation performante et un système de chauffage par pompe à chaleur, offrant une température stable et une consommation maîtrisée tout au long de l’année. Les matériaux et les finitions procurent une sensation de qualité durable, avec un niveau de prestation supérieur aux standards habituels.
Pour recevoir le plan détaillé ou obtenir davantage d’informations, je suis disponible.
Honoraires d’agence à la charge du vendeur. Bien non soumis au DPE. Les informations sur les risques auxquels ce bien est exposé sont disponibles sur le site Géorisques : www.georisques.gouv.fr. La présente annonce immobilière a été rédigée sous la responsabilité éditoriale de M. Sulyvan Pereira EI (ID 88628), mandataire indépendant en immobilier (sans détention de fonds), agent commercial de la SAS I@D France immatriculé au RSAC de CLERMONT FERRAND sous le numéro 944429612, titulaire de la carte de démarchage immobilier pour le compte de la société I@D France SAS.
Retrouvez tous nos biens sur notre site internet. www.iadfrance.fr
Mandat : 1896123-1
Diagnostic de Performance Énergétique (DPE)
Plus d'informations
-
Descriptif
- Terrasse
- Nbre. d'étages : 2
- Nbre. de chambres : 5
- Nb. de pièces : 6
-
Equipement
- Câble TV
- Digicode
- Interphone
-
Superficies
- Superficie terrain : 150 m²
- Surface habitable : 132 m²
-
Conditions
- Honoraires à charge de : vendeur
Localisation
Contactez nous
Pour plus d'informations sur cette annonce, n'hésitez pas à nous contacter