Vente
Terrain
à
Lissieu
310 000 €
Lissieu (69380)
iad France - Pauline Velozzo vous propose: Très belle opportunité à saisir - LISSIEU limite Limonest - Secteur résidentiel et calme
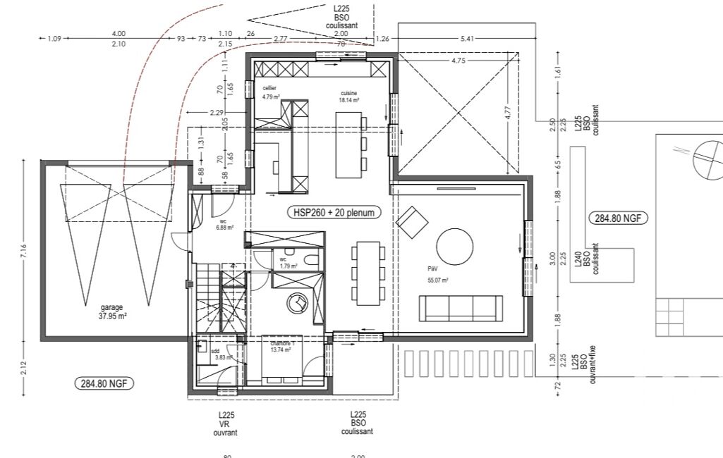
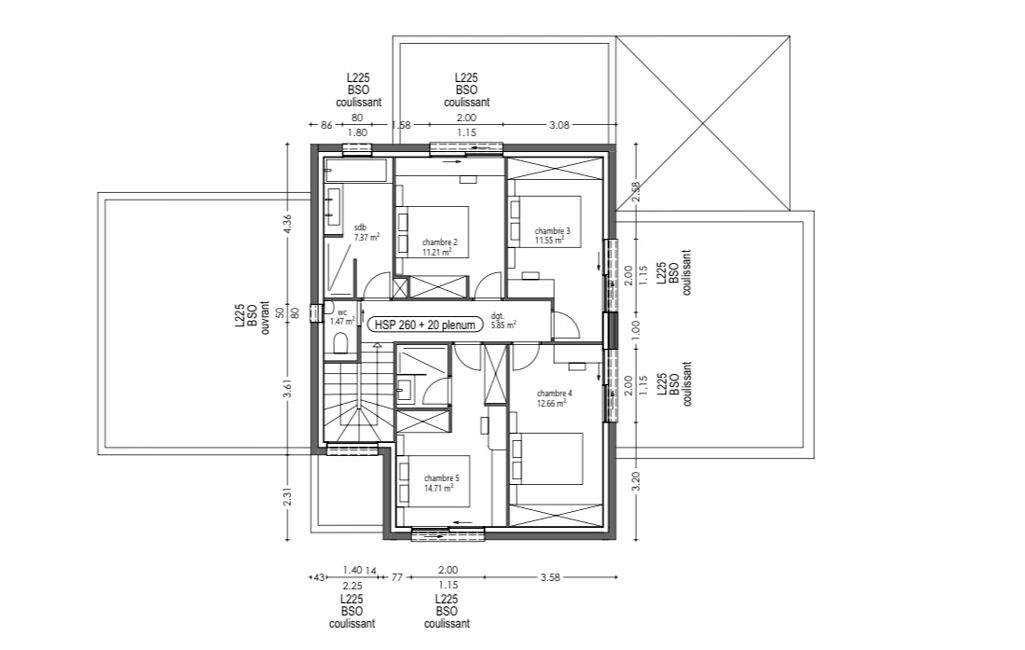
Terrain plat et viabilisé de 826 m² avec permis de construire - zone URI2B.
Localisation idéale, à proximité des commerces, écoles, transports....
Architecte du projet : Martin&Martin - Prestations haut de gamme - RT2020 - Très belle orientation EST-SUD-OUEST
Permis obtenu pour une maison contemporaine d'habitation en R+1 d'une surface de plancher de 175 m² environ. PIèce à vivre de près de 75 m², 4 chambres.
Grand garage (près de 40 m²). Piscine.
ATOUT MAJEUR: Lancement de la construction possible dès le lendemain de l'acquisition!!
Photos non contractuelles
Honoraires d'agence à la charge du vendeur.
Bien non soumis au DPE. Les informations sur les risques auxquels ce bien est exposé, y compris l'obligation légale de débroussaillement, sont disponibles sur le site Géorisques : http://www.georisques.gouv.fr.
La présente annonce immobilière a été rédigée sous la responsabilité éditoriale de Mme Pauline Velozzo mandataire indépendant en immobilier (sans détention de fonds), agent commercial de la SAS I@D France immatriculé au RSAC de LYON sous le numéro 938283462, titulaire de la carte de démarchage immobilier pour le compte de la société I@D France SAS.
Mandat : 1812975
Diagnostic de Performance Énergétique (DPE)
Plus d'informations
-
Conditions
- Honoraires à charge de : vendeur
-
Superficies
- Superficie terrain : 826 m²
Localisation
Contactez nous
Pour plus d'informations sur cette annonce, n'hésitez pas à nous contacter