Vente
Maison neuve
à
Le Crocq
249 020 €
Le Crocq (60120)
t si vous concrétisiez votre projet de vie dans un cadre calme et agréable ? 🏡
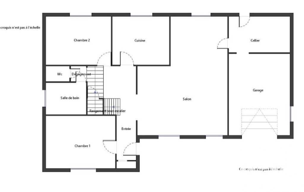
Situé à Le Crocq, ce projet de maison de 127 m² offre un environnement paisible, idéal pour profiter d’une qualité de vie sereine, tout en restant à une distance raisonnable des commodités essentielles et des grands axes.
La maison se distingue par une belle pièce de vie spacieuse et lumineuse avec cuisine ouverte, pensée pour favoriser les moments de partage et le confort au quotidien.
Au rez-de-chaussée, vous bénéficiez d’une suite parentale, apportant confort et indépendance.
À l’étage, l’espace nuit comprend 2 chambres supplémentaires, parfaites pour enfants, bureau ou chambre d’amis.
Un garage attenant vient compléter ce bien pour plus de praticité.
Un projet idéal pour une vie de famille, dans un cadre calme, avec une maison entièrement personnalisable selon vos envies
Contactez-nous pour une étude personnalisé de votre projet !
Mandat : KF - LE CROCQ
Diagnostic de Performance Énergétique (DPE)
Plus d'informations
-
Descriptif
- Nb. de WC : 1
- Salon
- Garage
- Nb. de salles de bain : 1
- Nb. de salles d'eau : 1
- WC séparés
- Nbre. de chambres : 3
- Nb. Parking : 2
- Type parking : Extérieur, Intérieur
- Nb. de WC séparés : 1
- Salle à manger
- Places de garage : 1
- Nb. de pièces : 5
-
Environnement
- Calme
- Standing
- Sans vis-à-vis
-
Conditions
- Honoraires : 5 320 €
- Prix du terrain : 53 200 €
- Honoraires à charge de : acquéreur
-
Equipement
- Poêle à bois
- Double vitrage
- Fosse septique
-
Etat
- État general : Neuf
- État intérieur : Neuf
-
Superficies
- Superficie terrain : 796 m²
- Surface habitable : 127 m²
-
Informations Energétiques
- Certifications : RE2020
Localisation
Contactez nous
Pour plus d'informations sur cette annonce, n'hésitez pas à nous contacter