Vente
Appartement
à
Lunel
245 000 €
Lunel (34400)
iad France - Penelope Stoker (06 50 24 86 27) vous propose : Appartement T3 avec terrasse et parking à Lunel
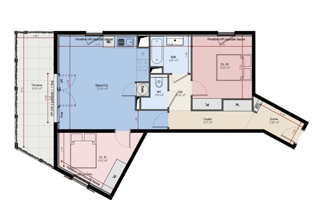
Au sein d'une résidence intimiste, découvrez cet appartement T3 de 62m2 environ avec terrasse de 14m2 environ, situé au 2ème étage.
L'appartement se compose d'une entrée, d'un agréable séjour / cuisine de 23m2 environ ouvrant sur une belle terrasse de 14m2 environ.
L'espace nuit offre deux chambres, une salle bain, un WC séparé ainsi que des espaces de dégagement optimisés.
La résidence bénéficie d'un emplacement pratique, à proximité des commerces, services, et commodités du quotidien.
Vendu avec deux places de parking.
Pour plus de renseignements, merci de me contacter.
Honoraires d’agence à la charge du vendeur. Bien non soumis au DPE. Les informations sur les risques auxquels ce bien est exposé sont disponibles sur le site Géorisques : www.georisques.gouv.fr. La présente annonce immobilière a été rédigée sous la responsabilité éditoriale de Mme Penelope Stoker EI (ID 83102), mandataire indépendant en immobilier (sans détention de fonds), agent commercial de la SAS I@D France immatriculé au RSAC de Paris sous le numéro 930194964, titulaire de la carte de démarchage immobilier pour le compte de la société I@D France SAS.
Retrouvez tous nos biens sur notre site internet. www.iadfrance.fr
Mandat : 2004824-3
Diagnostic de Performance Énergétique (DPE)
Plus d'informations
-
Descriptif
- Étage du bien : 1er
- Ascenseur
- Nb. de pièces : 3
-
Equipement
- Digicode
- Interphone
-
Conditions
- Honoraires à charge de : vendeur
-
Superficies
- Surface habitable : 62 m²
Localisation
Contactez nous
Pour plus d'informations sur cette annonce, n'hésitez pas à nous contacter