Vente
Appartement
à
Chessy
229 000 €
Chessy (77700)
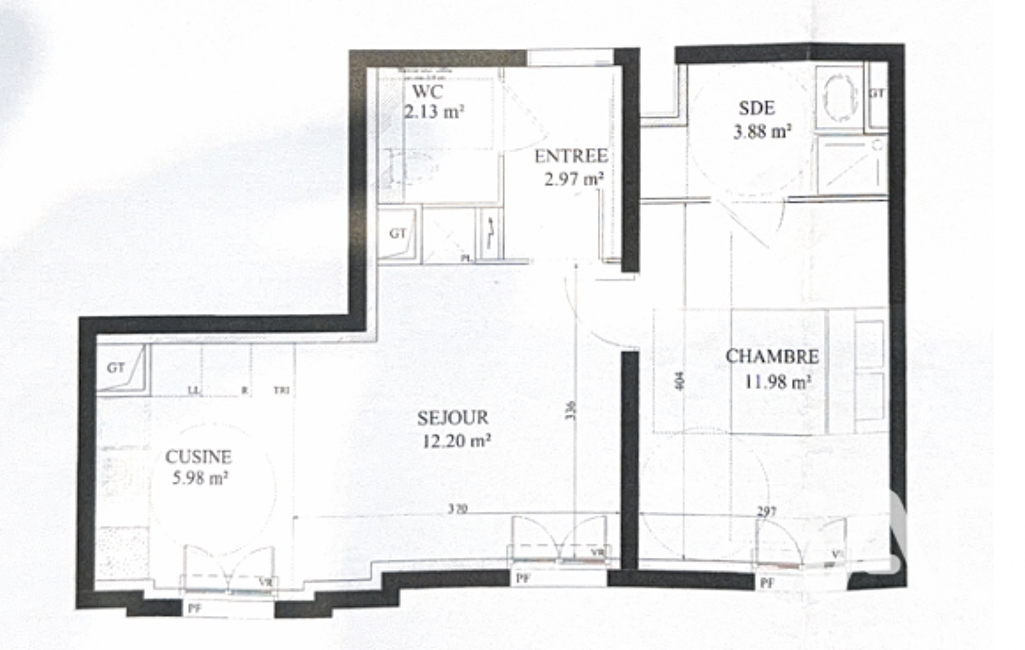
iad France - Aurelia Fernandes vous propose: A Chessy / Val d'Europe, à proximité directe des commerces, transports et écoles. Dans un immeuble de standing édifié en 2017, un appartement 2 pièces d'une surface de 39,14 m² au 3ème étage avec ascenseur, comprenant : entrée, pièce de vie avec son espace cuisine, chambre, salle d'eau et wc. Une place de stationnement en sous-sol complète ce bien. Plus d'informations ou visite ? N'hésitez pas à me contacter !
La presente annonce immobiliere vise 2 lots situés dans une copropriété de 354 lots au total et ne faisant l'objet d'aucune procédure en cours citée à l'article L. 721-1 du code de la construction et de l'habitation. Montant moyen mensuel de charges déclaré par le vendeur : 135.95€ par mois (soit 1631.36 € annuel). Honoraires d'agence à la charge du vendeur.
Information d'affichage énergétique sur ce bien : classe ENERGIE C indice 105 et classe CLIMAT C indice 20. Les informations sur les risques auxquels ce bien est exposé, y compris l'obligation légale de débroussaillement, sont disponibles sur le site Géorisques : http://www.georisques.gouv.fr.
La présente annonce immobilière a été rédigée sous la responsabilité éditoriale de Mme Aurelia Fernandes mandataire indépendant en immobilier (sans détention de fonds), agent commercial de la SAS I@D France immatriculé au RSAC de creteil sous le numéro 538327040, titulaire de la carte de démarchage immobilier pour le compte de la société I@D France SAS.
Mandat : 1997578
Diagnostic de Performance Énergétique (DPE)
Plus d'informations
-
Descriptif
- Ascenseur
- Nbre. d'étages : 5
- Nbre. de chambres : 1
- Nb. Parking : 1
- Nb. de pièces : 2
-
Equipement
- Digicode
- Chauffage : collectif gaz radiateur
- Interphone
-
Loi ALUR
- Copropriété
- Nombre de lots de la copropriété : 354
- Moyenne de la quote part(an) : 1 631.36 €
-
Etat
- Année de construction : 2017
-
Conditions
- Honoraires à charge de : vendeur
-
Superficies
- Surface habitable : 39 m²
Localisation
Contactez nous
Pour plus d'informations sur cette annonce, n'hésitez pas à nous contacter