Vente
Maison
à
Magny-le-Hongre
539 000 €
Magny-le-Hongre (77700)
iad France - Luca Bigorgne vous propose: Maison Familiale Indépendante Récente - 138 m² Habitables - 4 Chambres - Jardin, Terrasse & Garage - Magny-le-Hongre
Située dans un environnement calme et agréable, cette maison individuelle récente, construite en 2013, développe une surface au sol de 146 m², dont 138 m² habitables, et est édifiée sur une parcelle close de 336 m². Un bien rare, idéal pour une famille recherchant confort, volumes et qualité de vie.
Dès l’entrée, vous découvrirez une entrée spacieuse avec placard de rangement, pensée pour un quotidien pratique et fonctionnel.
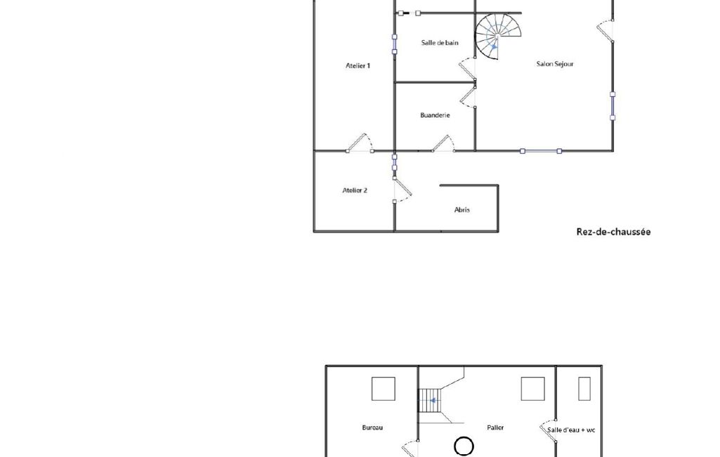
Le rez-de-chaussée propose une grande chambre d’environ 20 m², une salle d’eau ainsi qu’un WC indépendant, une cuisine Mobalpa, entièrement équipée et aménagée, offre une surface fonctionnelle de 10,73 m² et s’ouvre harmonieusement sur un séjour double lumineux de plus de 40 m² comprenant comprenant une véranda Akena, gamme Elite, baignée de lumière naturelle, avec de belles technologies à découvrir. Cet espace de vie généreux et convivial est parfaitement adapté aux moments de partage en famille comme aux réceptions.
À l’étage, l’espace nuit se compose de trois chambres confortables et lumineuses, d’une salle de bain, ainsi que d’un WC indépendant, apportant un réel confort au quotidien.
À l’extérieur, vous profiterez d’un jardin avec terrasse, bénéficiant d’une exposition idéale, sans vis-à-vis, offrant un cadre intime et agréable pour les moments de détente en famille.
Côté stationnement, la maison dispose d’un garage de 17 m², ainsi que de la possibilité de stationner sur la parcelle fermée.
- Prestations techniques : Chaudière neuve à condensation
- Performance énergétique : Maison avec un excellent diagnostic de performance énergétique (DPE)
Une maison indépendante, récente, lumineuse et bien entretenue, située dans un cadre de vie privilégié, à proximité des commodités, écoles et axes principaux.
Ne manquez pas cette opportunité.
Contactez moi dès maintenant pour organiser une visite et découvrir cette superbe maison familiale.
Honoraires d'agence à la charge du vendeur.
Information d'affichage énergétique sur ce bien : classe ENERGIE C indice 80 et classe CLIMAT C indice 16. Les informations sur les risques auxquels ce bien est exposé, y compris l'obligation légale de débroussaillement, sont disponibles sur le site Géorisques : http://www.georisques.gouv.fr.
La présente annonce immobilière a été rédigée sous la responsabilité éditoriale de M Luca Bigorgne mandataire indépendant en immobilier (sans détention de fonds), agent commercial de la SAS I@D France immatriculé au RSAC de Meaux sous le numéro 823310180, titulaire de la carte de démarchage immobilier pour le compte de la société I@D France SAS.
Mandat : 2005383
Diagnostic de Performance Énergétique (DPE)
Plus d'informations
-
Descriptif
- Nbre. de chambres : 4
- Nb. de pièces : 6
-
Superficies
- Superficie terrain : 336 m²
- Surface habitable : 138 m²
-
Equipement
- Chauffage : gaz radiateur
-
Etat
- Année de construction : 2013
-
Conditions
- Honoraires à charge de : vendeur
Localisation
Contactez nous
Pour plus d'informations sur cette annonce, n'hésitez pas à nous contacter