Vente
Appartement
à
Lambesc
228 000 €
Lambesc (13410)
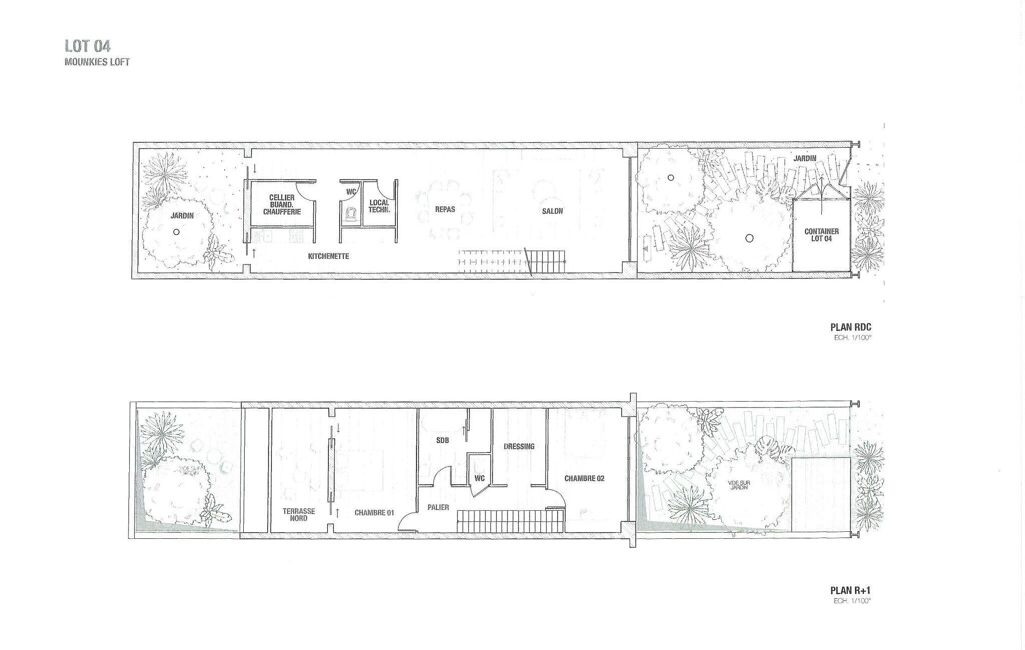
Votre agence 123webimmo l'immobilier au meilleur prix vous présente : En exclusivité, à seulement 10 minutes de Lambesc et 20 minutes de Salon-de-Provence, dans le sympatique village provençal de Charleval, nous vous proposons ce grand appartement-loft à terminer, vendu 'en plateau', en FNR, pour vous permettre de l'aménager à votre gout et à votre rythme.
Cet appartement se situe dans une petite copropriété intimiste de 6 lots, ce duplex de 110 m² offre de superbes volumes à exploiter.
Il est situé à la périphérie du village, dans un environnement agréable,à 2mn du centre et en retrait des nuisances sonores de la circulation.
Vous disposez également de 110 m² d'espaces extérieurs répartis en deux terrasses et jardins, ainsi que de deux places de stationnement privatives.
Les charges de copropriété sont particulièrement faibles, environ 100 € par an, ce qui renforce l'attractivité du projet.
Voici une opportunité concrète pour devenir propriétaire avec des mensualités maîtrisées et un bien entièrement à votre image.
Je reste à votre disposition pour échanger et vous accompagner dans votre projet.
N'hésitez pas à me dire ce qui vous intéresse en priorité (visite, informations techniques, financement, etc.), afin que je puisse vous orienter au mieux.
Les informations sur les risques auxquels ce bien est exposé sont disponibles sur le site du gouvernement
Mandat : 1536
Plus d'informations
-
Descriptif
- Nb. de WC : 2
- Nb. de salles d'eau : 1
- Terrasse
- Nbre. de chambres : 3
- Nb. Parking : 2
- Nb. de pièces : 4
-
Loi ALUR
- Copropriété
- Nombre de lots de la copropriété : 6
- Moyenne de la quote part(an) : 100 €
-
Superficies
- Surface du balcon : 10 m²
- Surface terrasse : 44 m²
- Surface habitable : 110 m²
-
Etat
- Travaux à prévoir
- Année de construction : 2025
-
Environnement
- Orientation : sud
-
Conditions
- Honoraires à charge de : vendeur
Localisation
Contactez nous
Pour plus d'informations sur cette annonce, n'hésitez pas à nous contacter