Vente
Local commercial
à
Meaux
1 800 000 €
Meaux (77100)
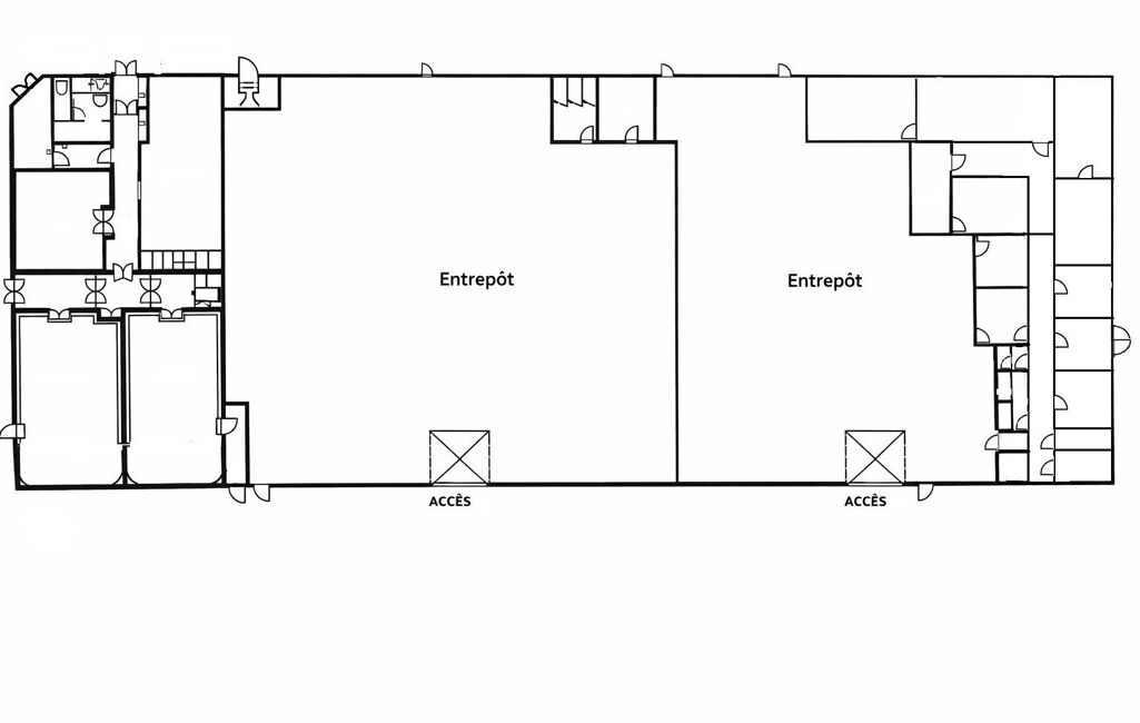
iad France - Corinne Comte (06 22 43 72 00) vous propose : Ensemble d’entrepôt & bureaux – 1 990 m² environ
Situé sur un vaste terrain clos de 3 697 m² environ, cet ensemble offre une surface exploitable totale de 1 990,45 m² environ, parfaitement adapté à diverses activités.
Composition du bien :
2 grands entrepôts communiquant : Entrepôt 1 : 692 m² environ et Entrepôt 2 : 512 m² environ.
12 bureaux répartis sur deux niveaux (rez-de-chaussée + 1er étage)
Divers espaces : Cuisine, salle des fêtes, WC, etc.
???? Accessibilité & logistique : zones de chargement / déchargement.
???? Atouts majeurs : ? Surface divisible et possibilité d’îlotage pour créer plusieurs lots indépendants
? Bureaux sur deux niveaux
Idéal investisseur ou entreprise souhaitant regrouper activité sur un même site.
Contactez-nous pour plus d’informations ou organiser une visite.
Information d'affichage énergétique sur le bien associé à cette annonce : DPE NS indice et GES NS indice .La présente annonce immobilière a été rédigée sous la responsabilité éditoriale de Mme Corinne Comte (ID 41952), Agent Commercial mandataire en immobilier immatriculé au Registre Spécial des Agents Commerciaux (RSAC) du Tribunal de Commerce de MEAUX sous le numéro 539309419
Retrouvez tous nos biens sur notre site internet. www.iadfrance.fr
Mandat : 1910957
Diagnostic de Performance Énergétique (DPE)
Plus d'informations
-
Conditions
- Honoraires à charge de : vendeur
-
Superficies
- Surface habitable : 1990 m²
Localisation
Contactez nous
Pour plus d'informations sur cette annonce, n'hésitez pas à nous contacter