Vente
Maison de maître
à
Rivedoux-Plage
1 595 000 €
Rivedoux-Plage (17940)
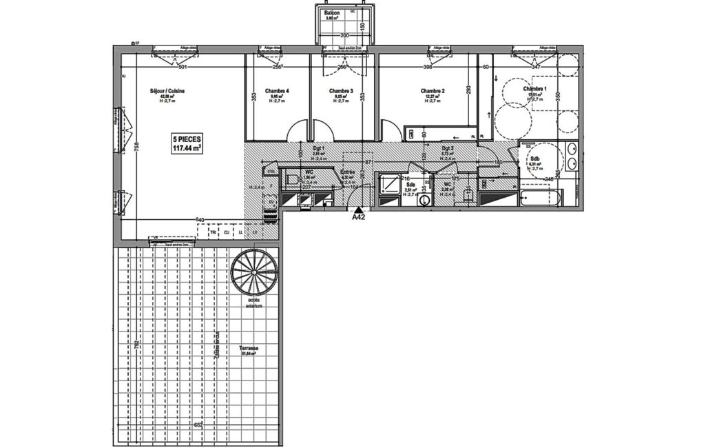
iad France - Isabelle Dean vous propose: Belle maison contemporaine avec deux grandes terrasses et une piscine alliant matériaux de qualité et volumes généreux créent une atmosphère chaleureuse.
Dès l’entrée, une grande cour mène à la maison principale, où la cuisine aménagée et équipée Schmitt s’ouvre sur une agréable salle à manger et un salon chaleureux avec cheminée et poêle à bois. Ces pièces de vie se prolongent naturellement vers la cour arrière et la piscine, créant une belle continuité entre intérieur et extérieur.
La suite parentale, spacieuse et lumineuse, dispose d’un bureau, de deux dressings, d’une salle d’eau avec WC et d’un accès direct à la terrasse côté piscine.
Une seconde partie offre une buanderie, une salle d’eau, un WC, et à l’étage, deux chambres confortables.
Une annexe indépendante complète l’ensemble, avec chambre, salle d’eau et WC, idéale pour recevoir en toute intimité.
Construite avec des matériaux de qualité, la maison mêle harmonieusement pierre et parquet, créant une atmosphère chaleureuse et cohérente. Les grandes ouvertures laissent entrer la lumière et valorisent les volumes généreux.
Les espaces extérieurs invitent à la détente : deux cours, une piscine chauffée (4x8, liner crème, électrolyse, volet roulant), un préau, un local technique et un garage complètent cet ensemble parfaitement entretenu.
Honoraires d'agence à la charge du vendeur.
Information d'affichage énergétique sur ce bien : classe ENERGIE D indice 249 et classe CLIMAT B indice 8. Les informations sur les risques auxquels ce bien est exposé, y compris l'obligation légale de débroussaillement, sont disponibles sur le site Géorisques : http://www.georisques.gouv.fr.
La présente annonce immobilière a été rédigée sous la responsabilité éditoriale de Mme Isabelle Dean mandataire indépendant en immobilier (sans détention de fonds), agent commercial de la SAS I@D France immatriculé au RSAC de LA ROCHELLE sous le numéro 515047272, titulaire de la carte de démarchage immobilier pour le compte de la société I@D France SAS.
Mandat : 1876887
Diagnostic de Performance Énergétique (DPE)
Plus d'informations
-
Descriptif
- Terrasse
- Nbre. d'étages : 2
- Nbre. de chambres : 4
- Nb. de pièces : 7
-
Equipement
- Câble TV
- Placards
- Chauffage : electrique radiateur
-
Superficies
- Superficie terrain : 608 m²
- Surface habitable : 205 m²
-
Extérieur
- Piscine
-
Etat
- Année de construction : 2005
-
Conditions
- Honoraires à charge de : vendeur
Localisation
Contactez nous
Pour plus d'informations sur cette annonce, n'hésitez pas à nous contacter