Vente
Maison
à
Les Sables-d'Olonne
429 000 €
Les Sables-d'Olonne (85100)
iad France - Clémence Alliot vous propose: Coup de coeur immédiat pour cette magnifique maison neuve au style cabane de pêcheur du Cap Ferret.
Idéalement située à La Chaume, quartier emblématique des Sables-d’Olonne, cette maison de plain-pied vous séduira par sa luminosité, son charme, et sa situation privilégiée à proximité immédiate de la plage, du port de plaisance, des restaurants et de toutes les commodités.
Entièrement réhabilitée en 2024 et 2025, elle offre des prestations modernes et de qualité sans travaux à prévoir. Coup de cOEur assuré pour cette superbe maison inspirée du style Cap Ferret.
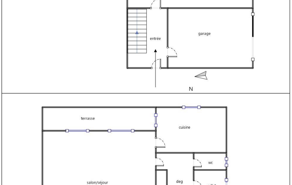
La maison se compose d’un lumineux salon-séjour, avec cuisine ouverte, aménagée et équipée, idéale pour recevoir. La pièce de vie dispose de larges baies vitrées en aluminium offrant un accès direct à la grande terrasse. Également, une buanderie/arrière-cuisine attenante pour plus de praticité.
Deux espaces nuits distincts garantissent confort et intimité :
Le premier espace nuit dispose d’un WC indépendant avec lave-mains, ainsi que d’une suite parentale comprenant une chambre spacieuse avec dressing et une salle d’eau privative. Elle dispose également d'une baie permettant un accès sur l'extérieur.
Le second espace nuit, accessible par une entrée indépendante depuis la rue, se compose d’une chambre (ou bureau) avec salle d’eau privative, idéale également pour une profession libérale.
Un garage avec porte motorisée complète ce bien, ainsi qu’un agréable espace extérieur comprenant une grande terrasse, un coin pelouse et une douche extérieure, parfaite pour les retours de plage.
Une maison clé en main, parfaitement située, pour vivre ou investir dans l’un des quartiers les plus recherchés du littoral vendéen.
Honoraires d'agence à la charge du vendeur.
Information d'affichage énergétique sur ce bien : classe ENERGIE C indice 100 et classe CLIMAT C indice 19. Les informations sur les risques auxquels ce bien est exposé, y compris l'obligation légale de débroussaillement, sont disponibles sur le site Géorisques : http://www.georisques.gouv.fr.
La présente annonce immobilière a été rédigée sous la responsabilité éditoriale de Mme Clémence Alliot mandataire indépendant en immobilier (sans détention de fonds), agent commercial de la SAS I@D France immatriculé au RSAC de LA ROCHE-SUR-YON sous le numéro 892750480, titulaire de la carte de démarchage immobilier pour le compte de la société I@D France SAS.
Mandat : 1995904
Diagnostic de Performance Énergétique (DPE)
Plus d'informations
-
Equipement
- Câble TV
- Placards
- Chauffage : gaz
- Interphone
-
Descriptif
- Terrasse
- Nbre. d'étages : 1
- Nbre. de chambres : 2
- Nb. de pièces : 3
-
Superficies
- Superficie terrain : 159 m²
- Surface habitable : 75 m²
-
Etat
- Année de construction : 2024
-
Conditions
- Honoraires à charge de : vendeur
Localisation
Contactez nous
Pour plus d'informations sur cette annonce, n'hésitez pas à nous contacter