Vente
Maison
à
Fléac
255 000 €
Fléac (16730)
iad France - Karine Rogeon vous propose: Opportunité à ne pas manquer ! Charmante Maison idéalement placée à Fléac.
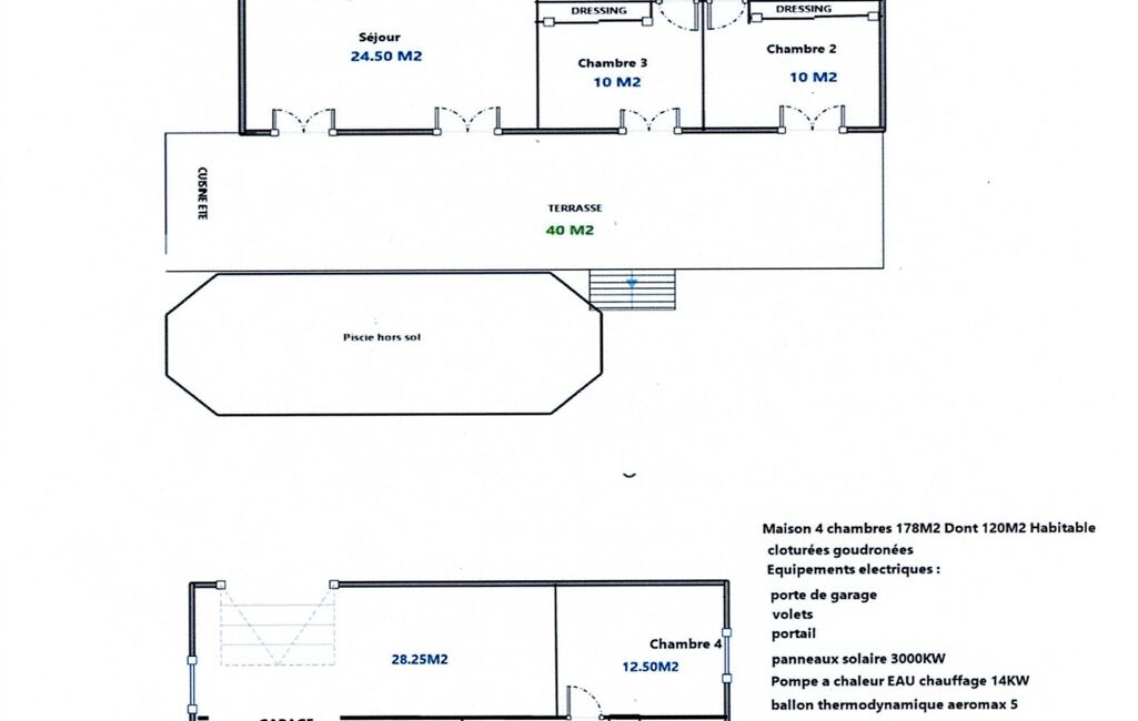
Je vous présente cette maison individuelle, entièrement rénovée, située dans un quartier paisible de Fléac. Sa surface habitable de 120m² offre un espace de vie confortable et lumineux, idéal pour une famille à la recherche de tranquillité et de convivialité.
Elle se compose d'une entrée, une cuisine aménagée et équipée, un séjour lumineux donnant sur une belle terrasse, une piscine hors sol, sécurisée, ainsi qu'un coin cuisine d'été.
Vous trouverez également 4 chambres lumineuses avec placard.
Au sous sol, un dressing, une chambre, un garage et un espace buanderie.
L'extérieur de la maison est tout aussi charmant, sur une belle parcelle de 1112 m2 entièrement clôturée et arborée.
- Pompe à chaleur
- Panneaux solaires
- Tout à l'égout
Venez découvrir votre futur coup de cOEur et ne manquez pas cette occasion unique d'acquérir une propriété de qualité à Fléac, contactez moi dès maintenant pour organiser une visite et laissez-vous séduire par le charme de cette maison !
Honoraires d'agence à la charge du vendeur.
Information d'affichage énergétique sur ce bien : classe ENERGIE E indice 235 et classe CLIMAT E indice 40. Les informations sur les risques auxquels ce bien est exposé, y compris l'obligation légale de débroussaillement, sont disponibles sur le site Géorisques : http://www.georisques.gouv.fr.
La présente annonce immobilière a été rédigée sous la responsabilité éditoriale de Mme Karine Rogeon mandataire indépendant en immobilier (sans détention de fonds), agent commercial de la SAS I@D France immatriculé au RSAC de ANGOULEME sous le numéro 919722322, titulaire de la carte de démarchage immobilier pour le compte de la société I@D France SAS.
Mandat : 1955880
Diagnostic de Performance Énergétique (DPE)
Plus d'informations
-
Descriptif
- Terrasse
- Nbre. d'étages : 2
- Nbre. de chambres : 4
- Nb. de pièces : 5
-
Superficies
- Superficie terrain : 1112 m²
- Surface habitable : 120 m²
-
Extérieur
- Piscine
-
Equipement
- Interphone
-
Conditions
- Honoraires à charge de : vendeur
Localisation
Contactez nous
Pour plus d'informations sur cette annonce, n'hésitez pas à nous contacter