Vente
Appartement
à
Fontenay-sous-Bois
675 000 €
Fontenay-sous-Bois (94120)
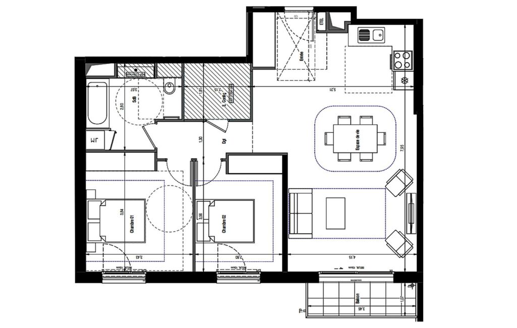
iad France - Caroline Berthon vous propose: Au calme sur jardin, dans l'un des secteurs les plus prisés de Fontenay-Sous-Bois, à 7mn à pied du RER A et du Bois de Vincennes, en coeur d'îlot à l'abri des regards et du bruit, tombez sous le charme de cet appartement de 88m² au sol comprenant TROIS CHAMBRES et deux salles de bain, qui se vit comme une maison.
Au sein d'un petit immeuble ancien entièrement rénové en 2020, cet appartement présente un agencement idéal pour une famille :
- L'entrée dessert les différents espaces
- Une pièce de vie lumineuse avec cuisine ouverte aménagée et équipée, baignée de soleil l'après-midi et le soir
- Deux chambres d'enfant donnant également sur le jardin
- Une salle de bain avec baignoire à l'ancienne et espace buanderie
- Des toilettes séparés
- En rez-de-jardin, la suite parentale composée d'une vaste chambre et d'une belle salle d'eau attenante avec toilettes, double vasque, et douche italienne.
- La jouissance d'un jardin privatif et d'extérieurs communs
- Une cave saine et un parking vélos
Les plus :
- Un cadre de vie privilégié et calme, à proximité des commerces des RIGOLLOTS et du VILLAGE, des écoles, du RER A, et du BOIS DE VINCENNES
- Sectorisation scolaire recherchée : Pasteur (primaire) et Victor Duruy (Collège)
- Entièrement équipé, aucuns travaux à prévoir
- Cachet et charme de l'ancien préservé
- Petite copropriété en bon état et conviviale, peu de charges charges (syndic bénévole)
- Appartement exposé ouest bénéficiant d'une belle luminosité et de soleil tout au long de l'année, et donnant entièrement sur jardin.
Un véritable coup de coeur à découvrir !
La presente annonce immobiliere vise 1 lot situé dans une copropriété de 4 lots au total et ne faisant l'objet d'aucune procédure en cours citée à l'article L. 721-1 du code de la construction et de l'habitation. Montant moyen mensuel de charges déclaré par le vendeur : 150€ par mois (soit 1800 € annuel). Honoraires d'agence à la charge du vendeur.
Information d'affichage énergétique sur ce bien : classe ENERGIE E indice 325 et classe CLIMAT E indice 50. Les informations sur les risques auxquels ce bien est exposé, y compris l'obligation légale de débroussaillement, sont disponibles sur le site Géorisques : http://www.georisques.gouv.fr.
La présente annonce immobilière a été rédigée sous la responsabilité éditoriale de Mme Caroline Berthon mandataire indépendant en immobilier (sans détention de fonds), agent commercial de la SAS I@D France immatriculé au RSAC de Créteil sous le numéro 831959721, titulaire de la carte de démarchage immobilier pour le compte de la société I@D France SAS.
Mandat : 1975339
Diagnostic de Performance Énergétique (DPE)
Plus d'informations
-
Descriptif
- Cave
- Terrasse
- Nbre. d'étages : 3
- Nbre. de chambres : 3
- Nb. de pièces : 4
-
Equipement
- Câble TV
- Digicode
- Placards
- Chauffage : individuel gaz radiateur
-
Loi ALUR
- Copropriété
- Nombre de lots de la copropriété : 4
- Moyenne de la quote part(an) : 1 800 €
-
Etat
- Année de construction : 1930
-
Conditions
- Honoraires à charge de : vendeur
-
Superficies
- Surface habitable : 81 m²
Localisation
Contactez nous
Pour plus d'informations sur cette annonce, n'hésitez pas à nous contacter