Vente
Duplex
à
Asnières-sur-Seine
675 000 €
Asnières-sur-Seine (92600)
iad France - Yanyan He vous propose: Magnifique Duplex F4 en Dernier Étage avec Rooftop - Asnières-sur-Seine - Rare dans le secteur
Découvrez ce bien d'exception de 2024 (sous garantie décennale), situé au pied du métro Gabriel Péri (Ligne 13). Un véritable havre de paix en hauteur, à seulement 15 minutes de la gare Saint Lazare.
Caractéristiques principales :
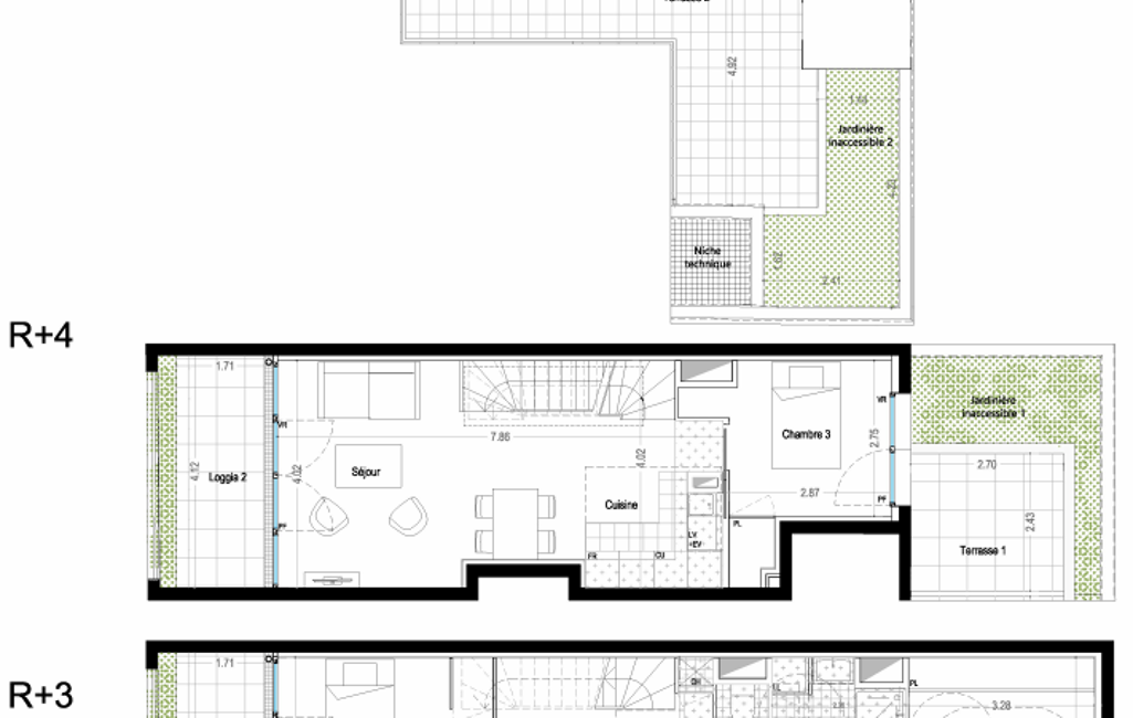
Surface Carrez : 80,31 m²
Espaces extérieurs : 62.8 m² au total (Terrasse de 23.2 m², deux loggias de 7 m² et un balcon de 6,6 m² et 19m² jardinières)
Étage : 3ème et 4ème (dernier étage) avec ascenseur.
Parking : Une place de stationnement en sous-sol incluse.
Agencement optimisé sur deux niveaux :
- Au 3ème étage (Espace Nuit) :
Une entrée accueillante.
Chambre 1 (13,5 m²) : avec accès direct à un loggia de 7 m².
Chambre 2 (13,2 m²) : équipée d'un grand placard intégré sur mesure.
Une salle d’eau moderne et un WC indépendant.
- Au 4ème étage (Espace Vie) :
Séjour lumineux (26.1 m²) : avec cuisine ouverte aménagée, ouvrant sur loggia de 7 m².
Chambre 3 (9,3 m²) : avec accès à un balcon de 6,6 m² avec jardinière
- Rooftop (Dernier niveau) :
Une exceptionnelle terrasse de 23.2 m² offrant une vue dégagée, idéale pour vos moments de détente ou vos réceptions.
Les points forts :
Localisation premium : Métro à 1 minute, commerces et écoles au pied de l'immeuble.
Prestations neuves : Construction de 2024, finitions soignées, aucun travaux à prévoir.
Rare sur le marché : Produit unique à Asnières combinant duplex, dernier étage, et 62.8 m² d'extérieurs.
Contactez moi 7J/7J pour organiser une visite.
La presente annonce immobiliere vise 2 lots situés dans une copropriété de 20 lots au total et ne faisant l'objet d'aucune procédure en cours citée à l'article L. 721-1 du code de la construction et de l'habitation. Montant moyen mensuel de charges déclaré par le vendeur : 500€ par mois (soit 6000 € annuel). Honoraires d'agence à la charge du vendeur.
Information d'affichage énergétique sur ce bien : classe ENERGIE C indice 66 et classe CLIMAT C indice 13. Les informations sur les risques auxquels ce bien est exposé, y compris l'obligation légale de débroussaillement, sont disponibles sur le site Géorisques : http://www.georisques.gouv.fr.
La présente annonce immobilière a été rédigée sous la responsabilité éditoriale de Mme Yanyan He mandataire indépendant en immobilier (sans détention de fonds), agent commercial de la SAS I@D France immatriculé au RSAC de NANTERRE sous le numéro 885123000, titulaire de la carte de démarchage immobilier pour le compte de la société I@D France SAS.
Mandat : 1943084
Diagnostic de Performance Énergétique (DPE)
Plus d'informations
-
Descriptif
- Étage du bien : 3eme
- Terrasse
- Ascenseur
- Nbre. d'étages : 3
- Nbre. de chambres : 3
- Nb. Parking : 1
- Nb. de pièces : 4
-
Equipement
- Digicode
- Placards
- Chauffage : individuel gaz
- Interphone
-
Loi ALUR
- Copropriété
- Nombre de lots de la copropriété : 20
- Moyenne de la quote part(an) : 6 000 €
-
Etat
- Année de construction : 2024
-
Conditions
- Honoraires à charge de : vendeur
-
Superficies
- Surface habitable : 80 m²
Localisation
Contactez nous
Pour plus d'informations sur cette annonce, n'hésitez pas à nous contacter