Vente
Appartement
à
Trappes
209 000 €
Trappes (78190)
iad France - Sandrine Bihoreau vous propose: Magnifique appartement T3 en rez-de-jardin avec terrasses.
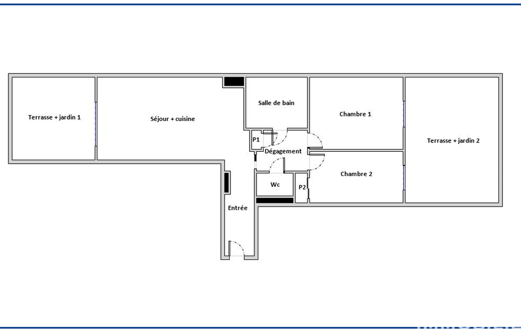
Bienvenue dans ce superbe appartement 3 pièces en rez-de-jardin, alliant calme, confort et modernité. Idéal pour un premier achat, un investissement locatif ou un pied-à-terre aux portes de Paris.
Situé au sein d’une résidence récente de 2020, cet appartement lumineux et traversant développe une surface de 59,07 m², parfaitement agencée pour un cadre de vie agréable.
Il se compose :
- d’une entrée,
- d’une cuisine ouverte sur le séjour, donnant accès à un premier jardin/terrasse de 12,31m²,
- d’un dégagement desservant la partie nuit,
- de deux chambres avec dressing, ouvertes sur un second jardin de 30,48 m²,
- d’une salle de bains,
- et d’un WC séparé.
Les atouts de ce bien :
- Deux superbes espaces extérieurs privatifs, parfaits pour profiter des beaux jours en toute tranquillité.
- Faibles charges de copropriété, incluant le chauffage et l’eau (compteurs individuels), ainsi que l’entretien des parties communes.
- Peintures récemment refaites dans l’entrée, la cuisine et le séjour.
- Résidence fermée et sécurisée, équipée de prestations modernes : fibre optique, ascenseur, ventilation mécanique, accès PMR, digicode, interphone et porte blindée.
- Deux places de parking en sous-sol complètent ce bien.
Idéalement situé dans un quartier dynamique et convivial, à proximité immédiate des commerces, écoles et transports en commun (gare accessible en 9 minutes à pied) et nationale 10 à 2 min. Construction récente encore sous garantie décennale, en excellent état général. Un appartement clé en main, prêt à vous accueillir.
Ne manquez pas cette opportunité. Contactez moi dès aujourd’hui pour organiser une visite.
La presente annonce immobiliere vise 3 lots situés dans une copropriété de 194 lots au total et ne faisant l'objet d'aucune procédure en cours citée à l'article L. 721-1 du code de la construction et de l'habitation. Montant moyen mensuel de charges déclaré par le vendeur : 176€ par mois (soit 2112 € annuel). Honoraires d'agence à la charge du vendeur.
Information d'affichage énergétique sur ce bien : classe ENERGIE C indice 94 et classe CLIMAT C indice 18. Les informations sur les risques auxquels ce bien est exposé, y compris l'obligation légale de débroussaillement, sont disponibles sur le site Géorisques : http://www.georisques.gouv.fr.
La présente annonce immobilière a été rédigée sous la responsabilité éditoriale de Mme Sandrine Bihoreau mandataire indépendant en immobilier (sans détention de fonds), agent commercial de la SAS I@D France immatriculé au RSAC de VERSAILLES sous le numéro 898908199, titulaire de la carte de démarchage immobilier pour le compte de la société I@D France SAS.
Mandat : 1962656
Diagnostic de Performance Énergétique (DPE)
Plus d'informations
-
Descriptif
- Terrasse
- Ascenseur
- Nbre. d'étages : 4
- Nbre. de chambres : 2
- Nb. de pièces : 3
-
Loi ALUR
- Copropriété
- Nombre de lots de la copropriété : 194
- Moyenne de la quote part(an) : 2 112 €
-
Equipement
- Digicode
- Chauffage : collectif gaz radiateur
-
Superficies
- Superficie terrain : 43 m²
- Surface habitable : 59 m²
-
Etat
- Année de construction : 2020
-
Conditions
- Honoraires à charge de : vendeur
Localisation
Contactez nous
Pour plus d'informations sur cette annonce, n'hésitez pas à nous contacter