Vente
Maison
à
Sartrouville
299 000 €
Sartrouville (78500)
iad France - Hafida Mechmache vous propose: Maison à rénover pour grande famille ou investisseurs avec dépendance et sous-sol aménagé (avec une sortie indépendante), garage, située sur le quartier du plateau, rue pavillonnaire ! Possibilité d'aménager les combles afin de créer un étage supplémentaire.
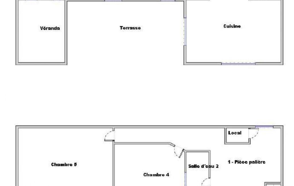
Construite en 1930, cette maison de caractère authentique offre un fort potentiel avec une surface habitable de 106m² sur un terrain de 263m².
Cette demeure de style ancien, vous offre de nombreuses possibilités d'aménagement.
Au rez-de-chaussée, vous trouverez un séjour avec cheminée et accès sur une jolie terrasse, sans vis à vis, une cuisine entièrement équipée, deux belles chambres dont une avec un très grand placard, une salle de bain avec double vasque et un wc.
En souplex, vous trouverez également deux autres chambres, une salle d'eau avec wc, et une buanderie.
À l'extérieur, profitez d'un jardin permettant de créer un espace verdoyant à votre goût. Cette maison bénéficie d'un emplacement idéal proche des commodités, des commerces, des écoles et des transports en commun. Offrant un cadre de vie paisible et familial, elle offre un potentiel d'aménagement illimité pour concrétiser tous vos projets de rénovation.
Ne ratez pas cette occasion unique de donner vie à votre projet de rénovation dans un environnement chargé d'histoire !
Honoraires d'agence à la charge du vendeur.
Information d'affichage énergétique sur ce bien : classe ENERGIE F indice 330 et classe CLIMAT F indice 73. Les informations sur les risques auxquels ce bien est exposé, y compris l'obligation légale de débroussaillement, sont disponibles sur le site Géorisques : http://www.georisques.gouv.fr.
La présente annonce immobilière a été rédigée sous la responsabilité éditoriale de Mme Hafida Mechmache mandataire indépendant en immobilier (sans détention de fonds), agent commercial de la SAS I@D France immatriculé au RSAC de Versailles sous le numéro 921752010, titulaire de la carte de démarchage immobilier pour le compte de la société I@D France SAS.
Mandat : 1965138
Diagnostic de Performance Énergétique (DPE)
Plus d'informations
-
Descriptif
- Nbre. d'étages : 2
- Nbre. de chambres : 4
- Nb. de pièces : 5
-
Superficies
- Superficie terrain : 263 m²
- Surface habitable : 106 m²
-
Equipement
- Chauffage : gaz radiateur
-
Etat
- Année de construction : 1930
-
Conditions
- Honoraires à charge de : vendeur
Localisation
Contactez nous
Pour plus d'informations sur cette annonce, n'hésitez pas à nous contacter