Vente
Maison
à
Vitré
269 500 €
Vitré (35500)
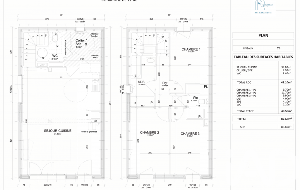
iad France - Aline Blaisonneau vous propose: Découvrez cette maison traditionnelle neuve de 83 m², construite en 2024, sur un terrain de 210 m² à Vitré. Elle propose une belle pièce de vie lumineuse avec cuisine ouverte, trois chambres confortables, une salle de bain et deux WC.
Vous profiterez également d’un jardin agréable avec abri de jardin et pergola, idéal pour les moments de détente. La maison bénéficie d’une excellente isolation et offre un cadre de vie confortable, parfait pour une famille en quête de tranquillité.
Contactez moi pour organiser une visite.
Honoraires d'agence à la charge du vendeur.
Bien non soumis au DPE. Les informations sur les risques auxquels ce bien est exposé, y compris l'obligation légale de débroussaillement, sont disponibles sur le site Géorisques : http://www.georisques.gouv.fr.
La présente annonce immobilière a été rédigée sous la responsabilité éditoriale de Mme Aline Blaisonneau mandataire indépendant en immobilier (sans détention de fonds), agent commercial de la SAS I@D France immatriculé au RSAC de RENNES sous le numéro 893215392, titulaire de la carte de démarchage immobilier pour le compte de la société I@D France SAS.
Mandat : 1927977
Diagnostic de Performance Énergétique (DPE)
Plus d'informations
-
Descriptif
- Nbre. d'étages : 1
- Nbre. de chambres : 3
- Nb. de pièces : 4
-
Equipement
- Câble TV
- Chauffage : electrique radiateur
-
Superficies
- Superficie terrain : 210 m²
- Surface habitable : 83 m²
-
Etat
- Année de construction : 2024
-
Conditions
- Honoraires à charge de : vendeur
Localisation
Contactez nous
Pour plus d'informations sur cette annonce, n'hésitez pas à nous contacter