Vente
Maison
à
Saint-Mars-la-Jaille
197 000 €
Saint-Mars-la-Jaille (44540)
iad France - Mathilde Griaud vous propose: Maison de plain-pied à vendre – Le Pin
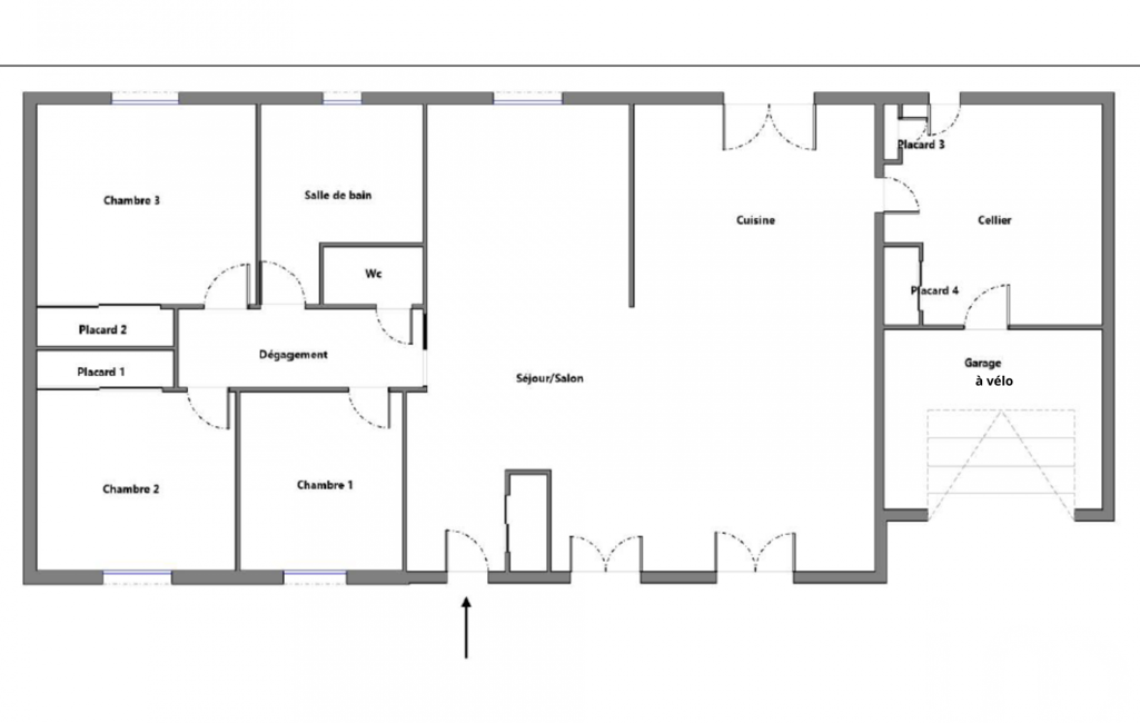
Située dans le bourg, cette maison de plain-pied d'environ 103m² offre un cadre de vie confortable et pratique.
La grande pièce de vie lumineuse, ouverte sur une cuisine aménagée et équipée, donne accès à deux terrasses, l’une à l’avant et l’autre à l’arrière de la maison, idéales pour profiter du soleil à toute heure de la journée.
Elle dispose de trois chambres, dont deux avec placards aménagés, offrant des rangements fonctionnels.
La maison comprend également une salle d’eau avec douche à l’italienne, des WC indépendants, une buanderie, un garage à vélo et un grenier.
Le chauffage est assuré par un poêle à granulés, garantissant confort et économie d’énergie.
À l’extérieur, une cabane de jardin complète l’ensemble sur un terrain de plus de 800 m². Située en second rideau, cette maison bénéficie d’un environnement calme tout en restant proche des commodités du bourg.
À découvrir rapidement ! Cette maison fonctionnelle et bien entretenue n’attend que vous, contactez-moi pour organiser une visite !
Vidéo de la maison disponible apès premier contact.
Honoraires d'agence à la charge du vendeur.
Information d'affichage énergétique sur ce bien : classe ENERGIE D indice 193 et classe CLIMAT B indice 6. Les informations sur les risques auxquels ce bien est exposé, y compris l'obligation légale de débroussaillement, sont disponibles sur le site Géorisques : http://www.georisques.gouv.fr.
La présente annonce immobilière a été rédigée sous la responsabilité éditoriale de Mme Mathilde Griaud mandataire indépendant en immobilier (sans détention de fonds), agent commercial de la SAS I@D France immatriculé au RSAC de Nantes sous le numéro 948644471, titulaire de la carte de démarchage immobilier pour le compte de la société I@D France SAS.
Mandat : 1970264
Diagnostic de Performance Énergétique (DPE)
Plus d'informations
-
Equipement
- Placards
- Chauffage : electrique radiateur
-
Descriptif
- Nbre. de chambres : 3
- Nb. de pièces : 4
-
Superficies
- Superficie terrain : 880 m²
- Surface habitable : 103 m²
-
Etat
- Année de construction : 2009
-
Conditions
- Honoraires à charge de : vendeur
Localisation
Contactez nous
Pour plus d'informations sur cette annonce, n'hésitez pas à nous contacter