Vente
Maison de ville
à
Bordeaux
695 000 €
Bordeaux (33000)
iad France - Nancy Douchet vous propose: Belle maison bourgeoise à rénover à Saint-Genès.
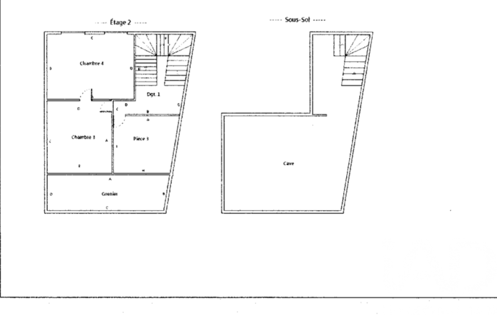
Idéalement située dans le très recherché quartier Saint-Genès, d'une surface habitable de 175 m² sur trois niveaux offre un fort potentiel après rénovation. Un jardin de 50m2 et une cave double saine de 28m2 complètent le bien.
Le rez-de-chaussée comprend une entrée, un salon, une salle à manger, une cuisine, une buanderie et un wc, le tout donnant sur le jardin.
Le 1er étage comprend deux grandes chambres et deux petites chambres, une salle de bains, deux salles d'eau et deux wc.
Le 2nd étage comprend trois chambres (bureaux), deux salles d'eau et un grenier à aménager. Possibilité d'agrandir deux chambres sur le grenier et de créer une salle d'eau supplémentaire.
La toiture a été refaite en 2024.
Rénovation complète à prévoir le reste de la maison avec un gros potentiel pour l'imaginer à votre goût.
Travaux de rénovation énergétique chiffrés (me contacter pour plus de précision).
Possibilité d'obtenir une place de stationnement attitrée proche de la maison.
Contactez-moi rapidement pour une visite.
Honoraires d'agence à la charge du vendeur.
Information d'affichage énergétique sur ce bien : classe ENERGIE E indice 261 et classe CLIMAT E indice 51. Les informations sur les risques auxquels ce bien est exposé, y compris l'obligation légale de débroussaillement, sont disponibles sur le site Géorisques : http://www.georisques.gouv.fr.
La présente annonce immobilière a été rédigée sous la responsabilité éditoriale de Mme Nancy Douchet mandataire indépendant en immobilier (sans détention de fonds), agent commercial de la SAS I@D France immatriculé au RSAC de Bordeaux sous le numéro 949852032, titulaire de la carte de démarchage immobilier pour le compte de la société I@D France SAS.
Mandat : 1966705
Diagnostic de Performance Énergétique (DPE)
Plus d'informations
-
Descriptif
- Cave
- Nbre. d'étages : 3
- Nbre. de chambres : 5
- Nb. Parking : 1
- Nb. de pièces : 9
-
Equipement
- Cheminée
- Chauffage : gaz
-
Superficies
- Superficie terrain : 50 m²
- Surface habitable : 175 m²
-
Etat
- Année de construction : 1850
-
Conditions
- Honoraires à charge de : vendeur
Localisation
Contactez nous
Pour plus d'informations sur cette annonce, n'hésitez pas à nous contacter