Vente
Appartement
à
Le Bourget
102 000 €
Le Bourget (93350)
iad France - Rafael Vu Van vous propose: À vendre – Appartement 2 pièces de 27 m² à fort potentiel – Le Bourget
Idéal investisseur ou premier achat – Rentabilité attractive jusqu’à 9 % net après travaux
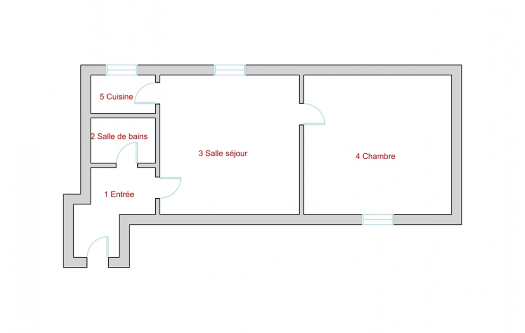
Situé en rez-de-chaussée, cet appartement 2 pièces de 27 m² est entièrement à rénover, offrant une véritable page blanche pour un projet sur mesure.
Le bien présente un fort potentiel de valorisation, avec un DPE améliorable en D ou E après simple rénovation.
Caractéristiques principales :
Exposition Sud-Ouest
Chambre au calme, donnant sur cour intérieure
Séjour et cuisine lumineux avec fenêtre sur rue
Cave privative
Agencement optimisable
Emplacement stratégique :
À seulement 600 m de la Gare du Bourget (RER B)
Proximité immédiate du Tram T11 et des futures lignes du Grand Paris
Quartier recherché, proche des commerces, transports et commodités
Un bien rare sur le secteur, idéal pour un investissement rentable ou un premier achat avec plus-value à la clé.
À visiter sans tarder !
Chers confrères et consOEurs, toutes mes annonces sont ouvertes à l’inter-cabinet.
La presente annonce immobiliere vise 2 lots situés dans une copropriété de 48 lots au total et ne faisant l'objet d'aucune procédure en cours citée à l'article L. 721-1 du code de la construction et de l'habitation. Montant moyen mensuel de charges déclaré par le vendeur : 73.33€ par mois (soit 879.96 € annuel). Honoraires d'agence à la charge du vendeur.
Information d'affichage énergétique sur ce bien : classe ENERGIE G indice 829 et classe CLIMAT C indice 27. Les informations sur les risques auxquels ce bien est exposé, y compris l'obligation légale de débroussaillement, sont disponibles sur le site Géorisques : http://www.georisques.gouv.fr.
La présente annonce immobilière a été rédigée sous la responsabilité éditoriale de M Rafael Vu Van mandataire indépendant en immobilier (sans détention de fonds), agent commercial de la SAS I@D France immatriculé au RSAC de Créteil sous le numéro 832335012, titulaire de la carte de démarchage immobilier pour le compte de la société I@D France SAS.
Mandat : 1950621
Diagnostic de Performance Énergétique (DPE)
Plus d'informations
-
Equipement
- Câble TV
- Digicode
- Chauffage : individuel electrique
-
Loi ALUR
- Copropriété
- Nombre de lots de la copropriété : 48
- Moyenne de la quote part(an) : 879.96 €
-
Descriptif
- Nbre. de chambres : 1
- Nb. de pièces : 2
-
Etat
- Année de construction : 1950
-
Conditions
- Honoraires à charge de : vendeur
-
Superficies
- Surface habitable : 27 m²
Localisation
Contactez nous
Pour plus d'informations sur cette annonce, n'hésitez pas à nous contacter