Vente
Appartement
à
La Rochelle
241 771 €
La Rochelle (17000)
iad France - Amélie Davin (06 50 71 40 30) vous propose : LA ROCHELLE - PORT NEUF
Quartier attractif et animé, toutes les commodités accessibles à pied, au pied du Stade Marcel Deflandre.
A 10 min à vélo de l'hypercentre de La Rochelle.
Les bus au pied de l'immeuble et la gare à 2 km facilitent vos déplacements.
SITUÉ AU 5ème ETAGE AVEC ASCENSEUR :
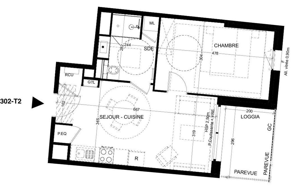
APPARTEMENT DE TYPE T2 COMPRENANT - SEJOUR avec CUISINE OUVERTE - CHAMBRE - SALLE D'EAU AVEC WC.
UNE TERRASSE DE 10m2 environ.
DERNIERES NORMES EN VIGUEUR RE 2020.
UN PARKING INCLUS.
Honoraires d’agence à la charge du vendeur. Bien non soumis au DPE. Les informations sur les risques auxquels ce bien est exposé sont disponibles sur le site Géorisques : www.georisques.gouv.fr. La présente annonce immobilière a été rédigée sous la responsabilité éditoriale de Mlle Amélie Davin EI (ID 79786), mandataire indépendant en immobilier (sans détention de fonds), agent commercial de la SAS I@D France immatriculé au RSAC de La Rochelle sous le numéro 501547681, titulaire de la carte de démarchage immobilier pour le compte de la société I@D France SAS.
Retrouvez tous nos biens sur notre site internet. www.iadfrance.fr
Mandat : 1973235-6
Diagnostic de Performance Énergétique (DPE)
Plus d'informations
-
Conditions
- Honoraires à charge de : vendeur
-
Descriptif
- Nb. de pièces : 2
-
Superficies
- Surface habitable : 57 m²
Localisation
Contactez nous
Pour plus d'informations sur cette annonce, n'hésitez pas à nous contacter