Vente
Maison
à
Mougins
690 000 €
Mougins (06250)
iad France - Aurélie Vacroux vous propose: Opportunité, En plein cOEur de Mougins Tournamy. Sur un terrain plat de 750m2 Maison neuve sur deux niveaux d'environ 110m2 à terminer.
Permis purgé et validé : L'intérieur peut encore être complètement modulé selon vos besoins et vos envies.
Au rdc il est prévu une grande pièce de vie composée d'une entrée donnant sur le salon, suivit de la salle à manger et de la cuisine ouverte. Un WC invité ainsi qu'un dressing compléte ce niveau.
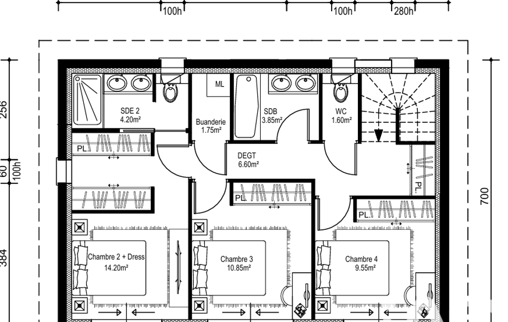
A l'étage, 3 chambres dont une suite parentale avec sde, WC et dressing, deux autres chambres avec salle de bain. Une buanderie et un WC indépendant.
Budget Travaux estimé par le chef de chantier qui s'occupe de la construction pour la finalisation du projet avec la piscine : 195 000€. (Délai 8 mois environ)
Un projet idéal pour ceux qui veulent du neuf sans l'attente administrative en plein cOEur de Mougins.
N'hésitez pas à me contacter pour plus d'informations.
Honoraires d'agence à la charge du vendeur.
Bien non soumis au DPE. Les informations sur les risques auxquels ce bien est exposé, y compris l'obligation légale de débroussaillement, sont disponibles sur le site Géorisques : http://www.georisques.gouv.fr.
La présente annonce immobilière a été rédigée sous la responsabilité éditoriale de Mme Aurélie Vacroux mandataire indépendant en immobilier (sans détention de fonds), agent commercial de la SAS I@D France immatriculé au RSAC de CANNES sous le numéro 990877920, titulaire de la carte de démarchage immobilier pour le compte de la société I@D France SAS.
Mandat : 2011502
Diagnostic de Performance Énergétique (DPE)
Plus d'informations
-
Descriptif
- Nbre. d'étages : 2
- Nb. de pièces : 5
-
Superficies
- Superficie terrain : 750 m²
- Surface habitable : 110 m²
-
Etat
- Année de construction : 2022
-
Conditions
- Honoraires à charge de : vendeur
Localisation
Contactez nous
Pour plus d'informations sur cette annonce, n'hésitez pas à nous contacter