Vente
Maison
à
Ézanville
479 000 €
Ézanville (95460)
iad France - N'deyebanna Sane vous propose: À VENDRE – Maison familiale rénovée de 156 m² – 8 pièces – 4 chambres – studio indépendant – Ézanville (95)
Idéalement située à Ézanville, dans un environnement calme et résidentiel, à proximité immédiate de la gare Écouen-Ézanville (ligne H) ainsi que des commerces, écoles et commodités, cette maison individuelle des années 60 séduit par ses volumes, sa rénovation récente et ses nombreuses possibilités d’aménagement.
Édifiée sur un terrain de 320 m², elle développe une surface habitable de 156 m² (167 m² au total) et s’organise sur un entresol aménagé et deux niveaux.
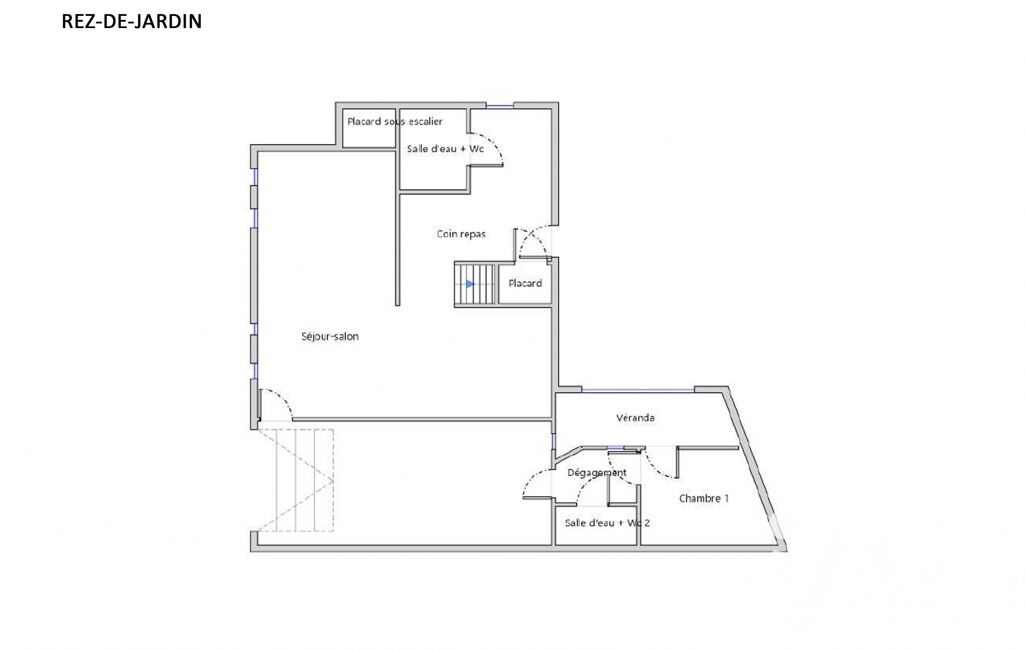
Le rez-de-jardin entièrement aménagé propose un vaste salon d’environ 47 m², une cuisine/buanderie, une salle d’eau avec WC ainsi qu’un studio indépendant d’environ 20 m² avec coin cuisine, salle d’eau et espace nuit. Une véranda et une terrasse couverte complètent cet espace, idéal pour recevoir, exercer une activité indépendante, accueillir un proche ou créer un revenu locatif.
Le rez-de-chaussée surélevé comprend un double séjour lumineux avec cheminée, une cuisine indépendante aménagée et équipée, une chambre et une salle d’eau avec WC.
À l’étage, un palier aménagé en bureau dessert deux belles chambres et des toilettes indépendantes, dans lesquelles il est possible d’aménager une douche afin de créer une salle d’eau.
À l’extérieur, vous profiterez d’un jardin agréable, d’un grand garage, d’une cave ainsi que d’une place de stationnement supplémentaire.
La maison a bénéficié de plusieurs améliorations récentes, avec une toiture entièrement refaite en 2023, une isolation thermique par l’extérieur réalisée en 2022, une chaudière remplacée en 2019 ainsi qu’une installation électrique très récente, offrant confort et sérénité aux futurs propriétaires.
Une maison idéale pour une famille à la recherche d’espace, de confort et de proximité avec Paris.
Honoraires d'agence à la charge du vendeur.
Information d'affichage énergétique sur ce bien : classe ENERGIE D indice 222 et classe CLIMAT D indice 32. Les informations sur les risques auxquels ce bien est exposé, y compris l'obligation légale de débroussaillement, sont disponibles sur le site Géorisques : http://www.georisques.gouv.fr.
La présente annonce immobilière a été rédigée sous la responsabilité éditoriale de Mme N'deyebanna Sane mandataire indépendant en immobilier (sans détention de fonds), agent commercial de la SAS I@D France immatriculé au RSAC de CRETEIL sous le numéro 889295267, titulaire de la carte de démarchage immobilier pour le compte de la société I@D France SAS.
Mandat : 1969141
Diagnostic de Performance Énergétique (DPE)
Plus d'informations
-
Descriptif
- Nbre. d'étages : 2
- Nbre. de chambres : 4
- Nb. de pièces : 8
-
Equipement
- Câble TV
- Chauffage : gaz
-
Superficies
- Superficie terrain : 320 m²
- Surface habitable : 156 m²
-
Etat
- Année de construction : 1960
-
Conditions
- Honoraires à charge de : vendeur
Localisation
Contactez nous
Pour plus d'informations sur cette annonce, n'hésitez pas à nous contacter